网站首页
关于我们
公司简介
体系简介
智能制造
企业文化
技术优势
公司荣誉
业务范围
品牌历程
视频中心
产品展示
产品分类一
产品分类二
产品分类三
新闻资讯
行业新闻
公司新闻
媒体报道
企业展示
案例展示
合作伙伴
工程案例
人才招聘
联系我们
公司新闻
行业新闻
公司新闻
媒体报道
首页
>>
新闻资讯
>>
公司新闻
2026-03-06
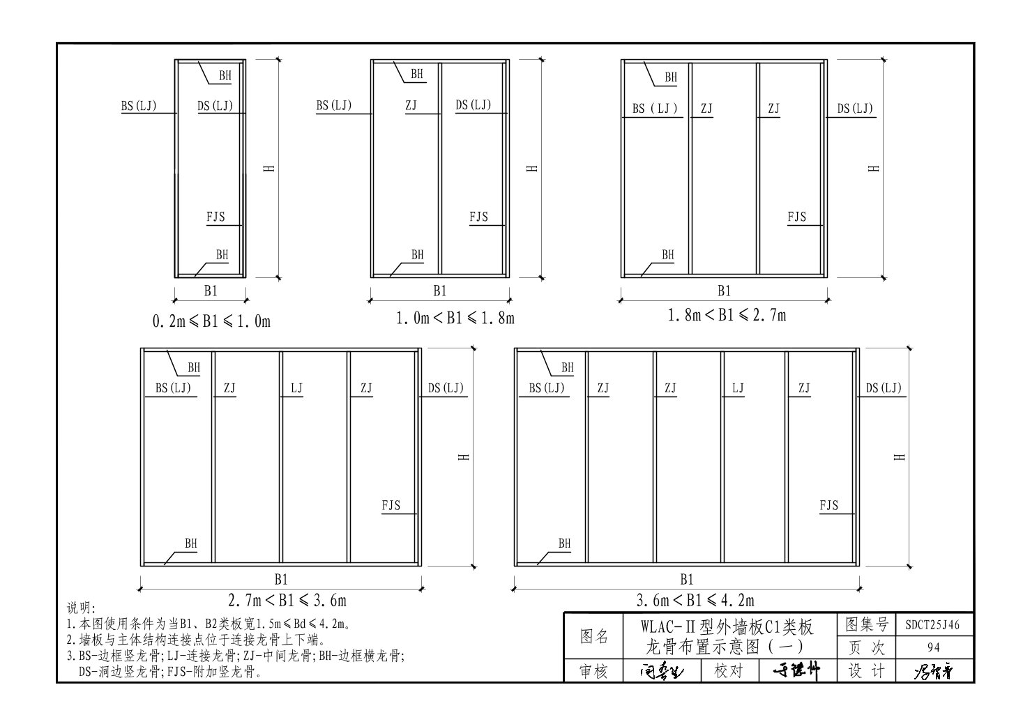
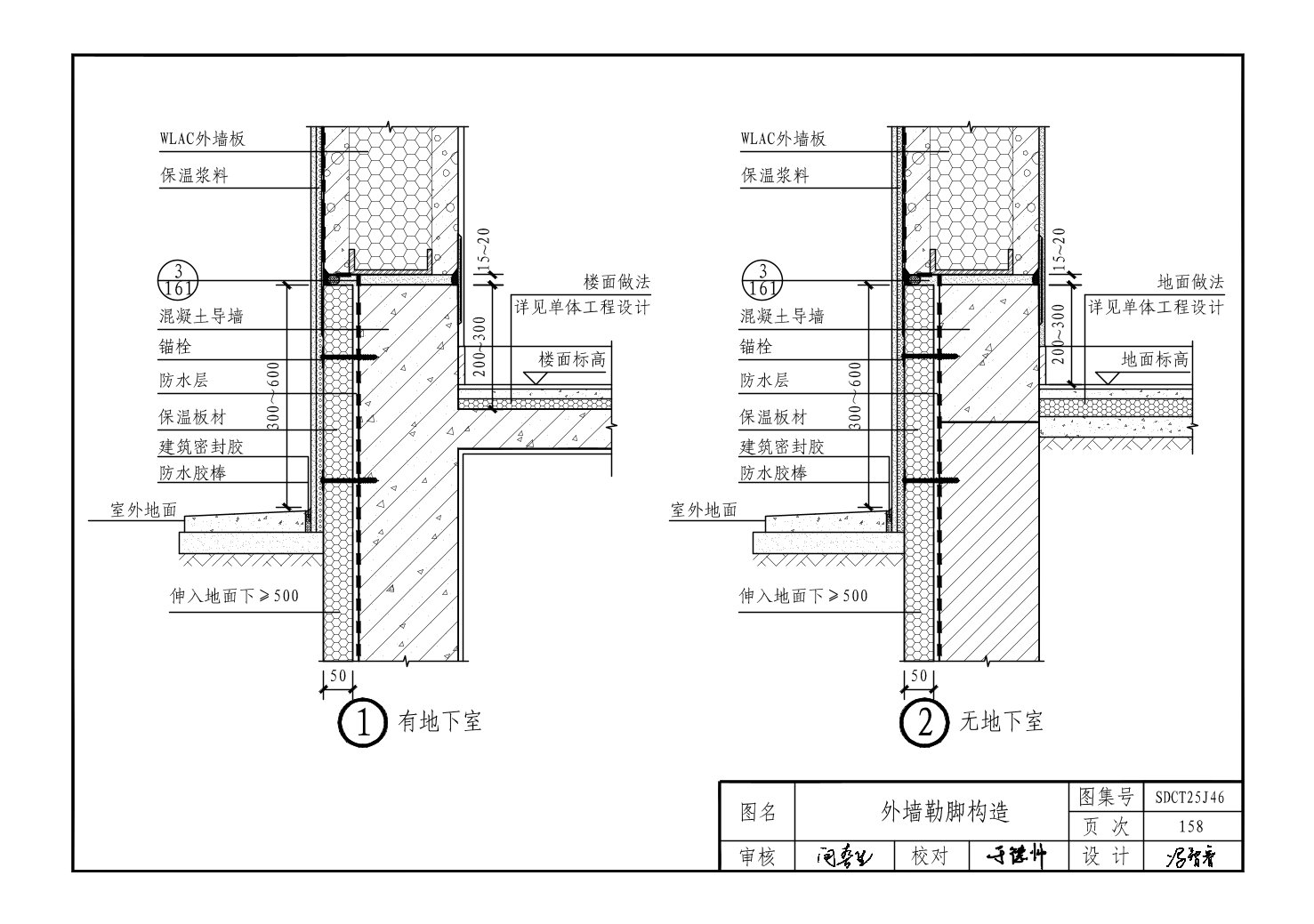
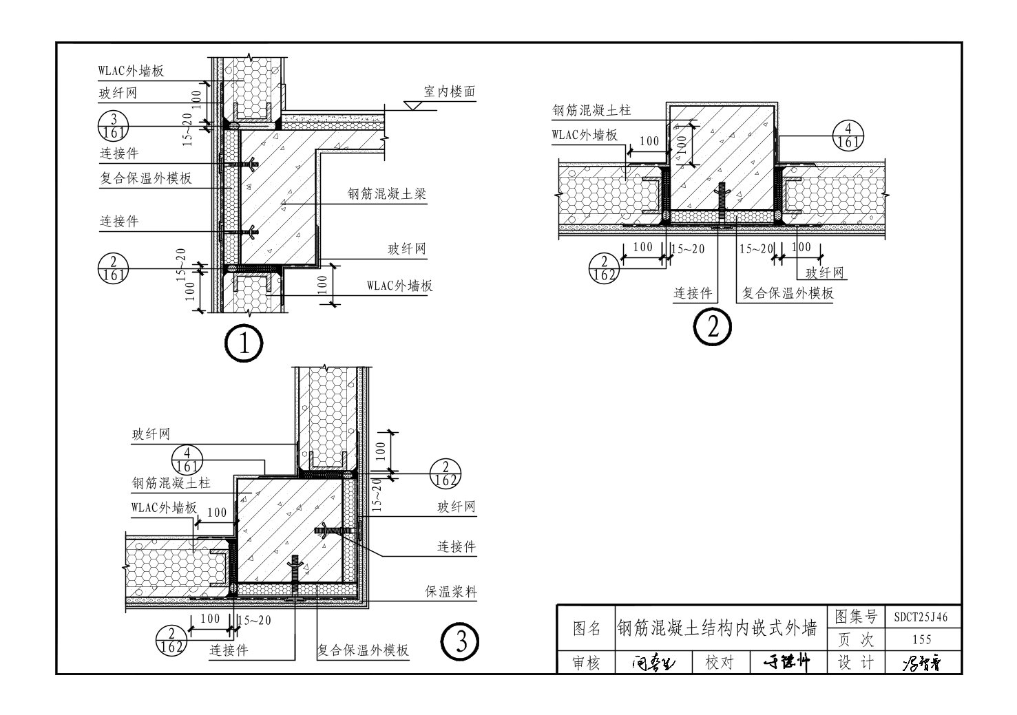
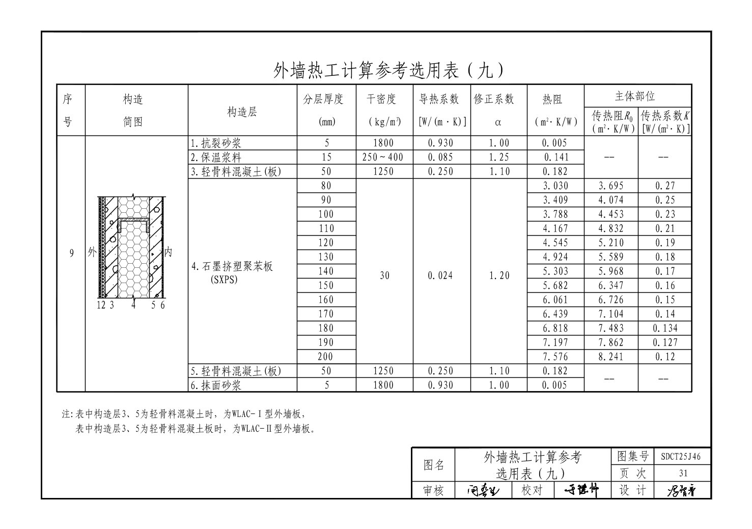
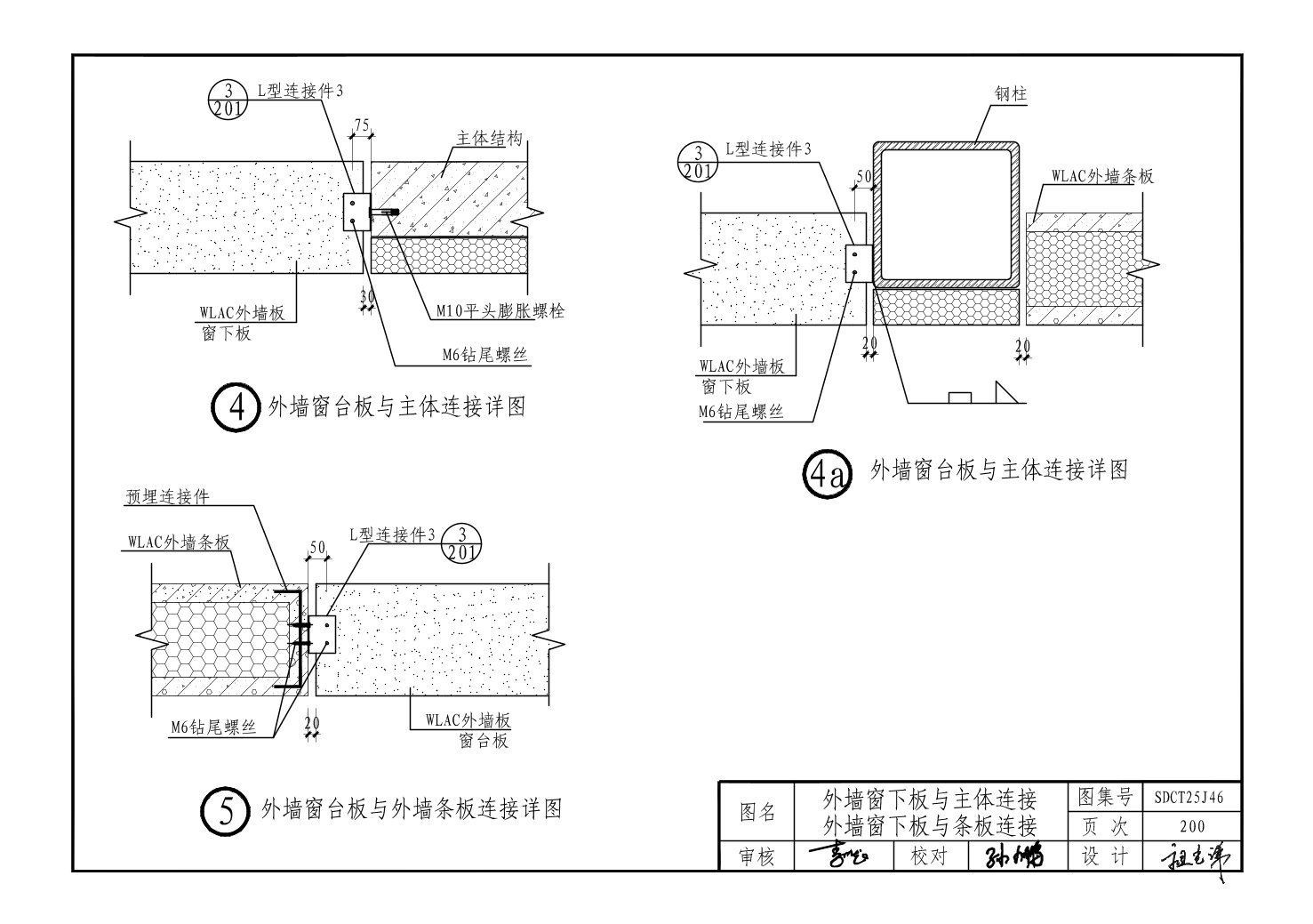
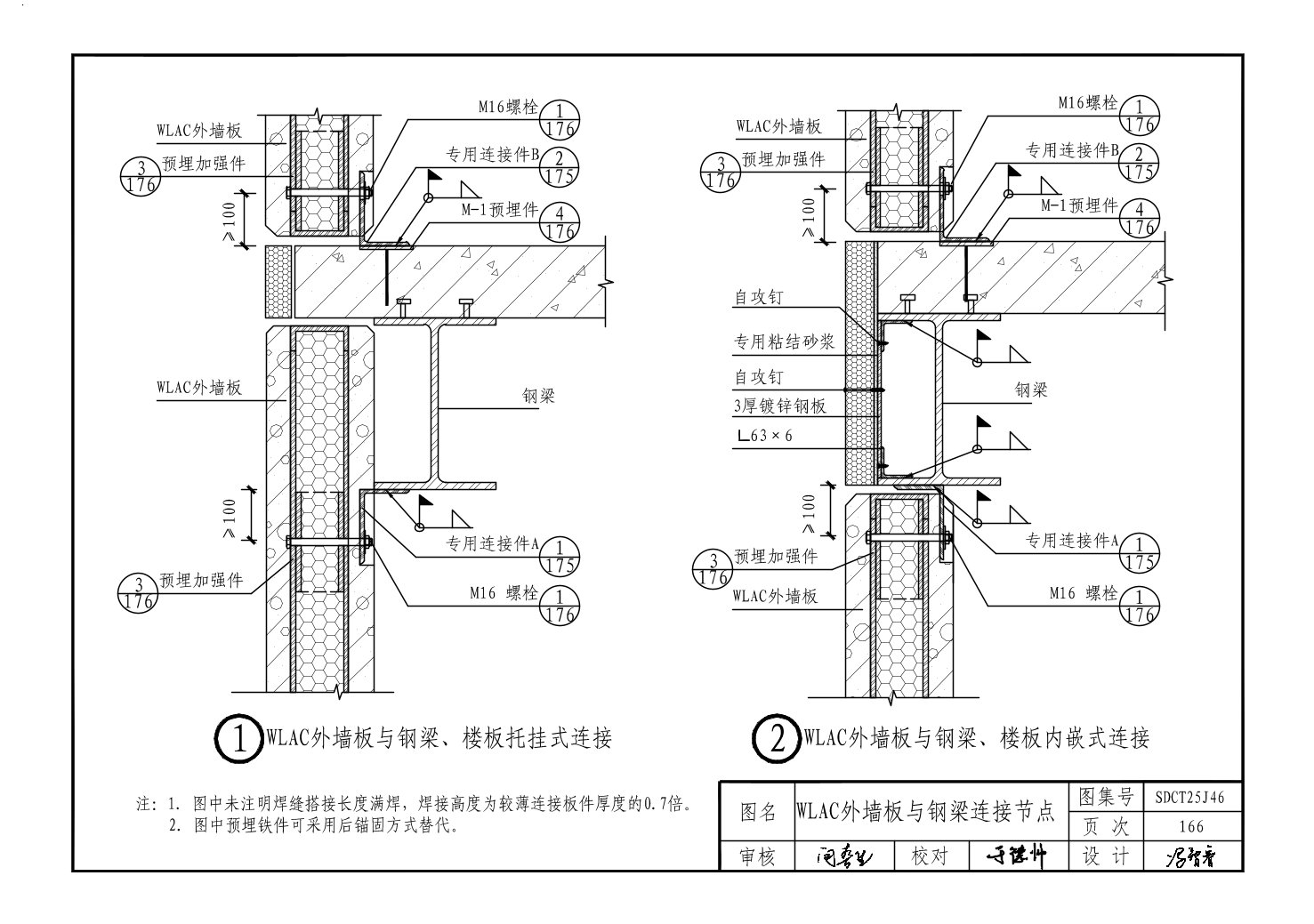
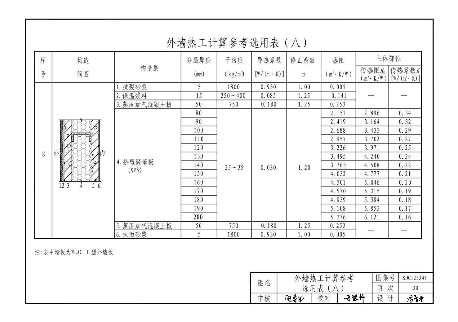
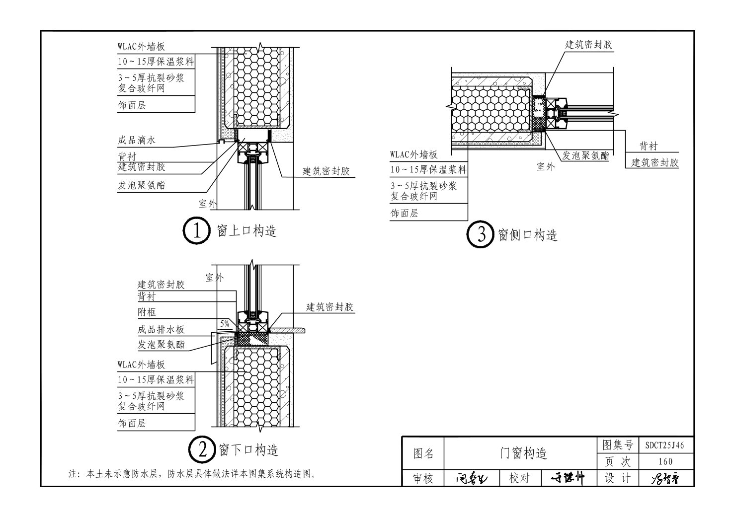
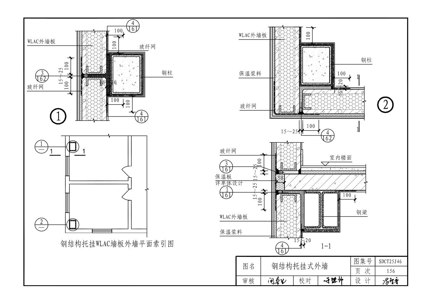
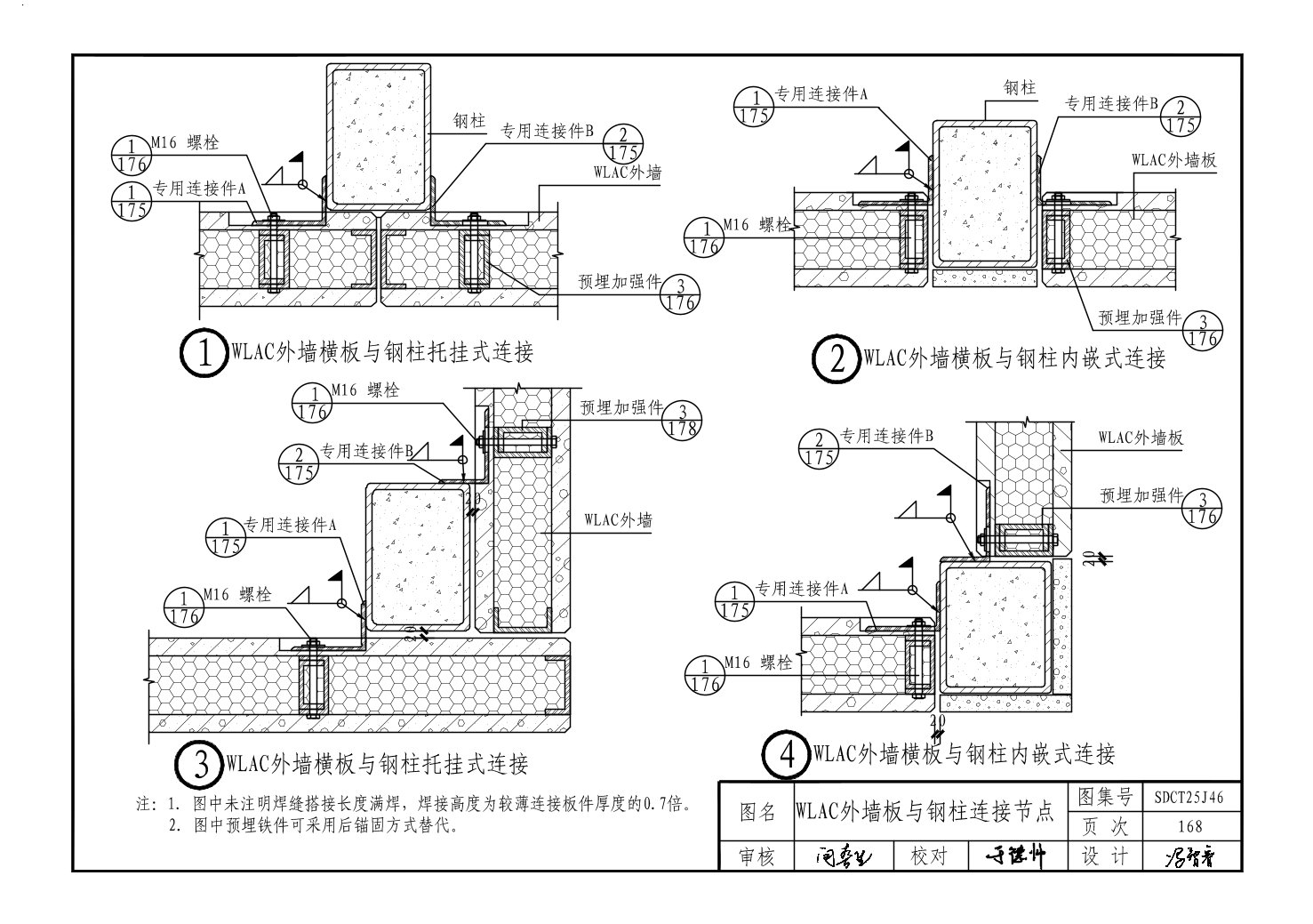
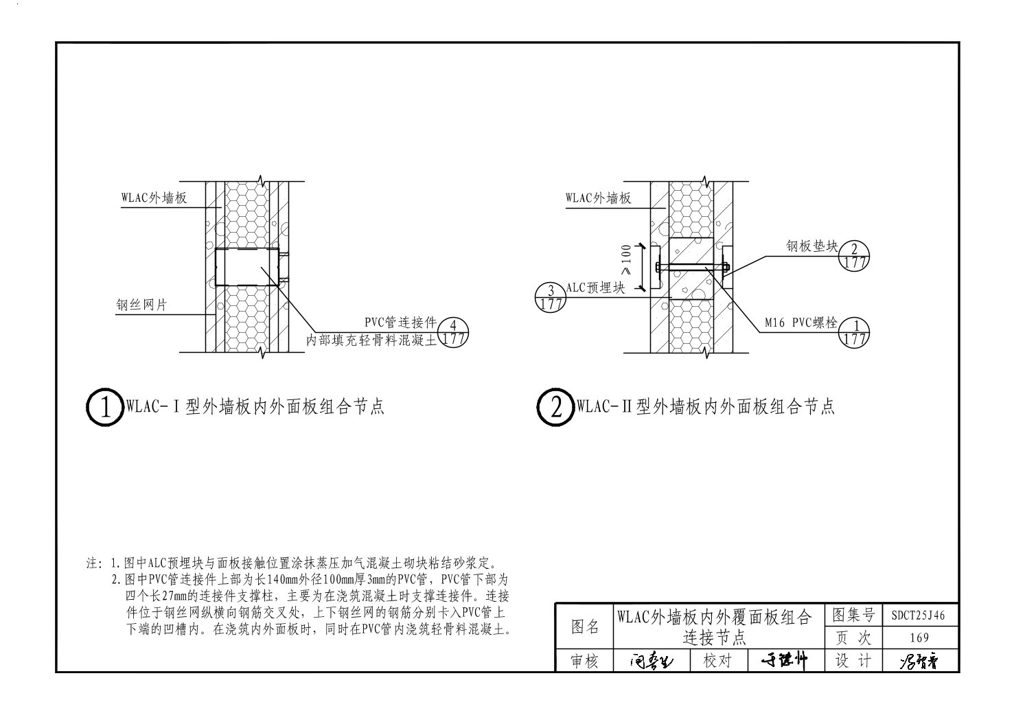
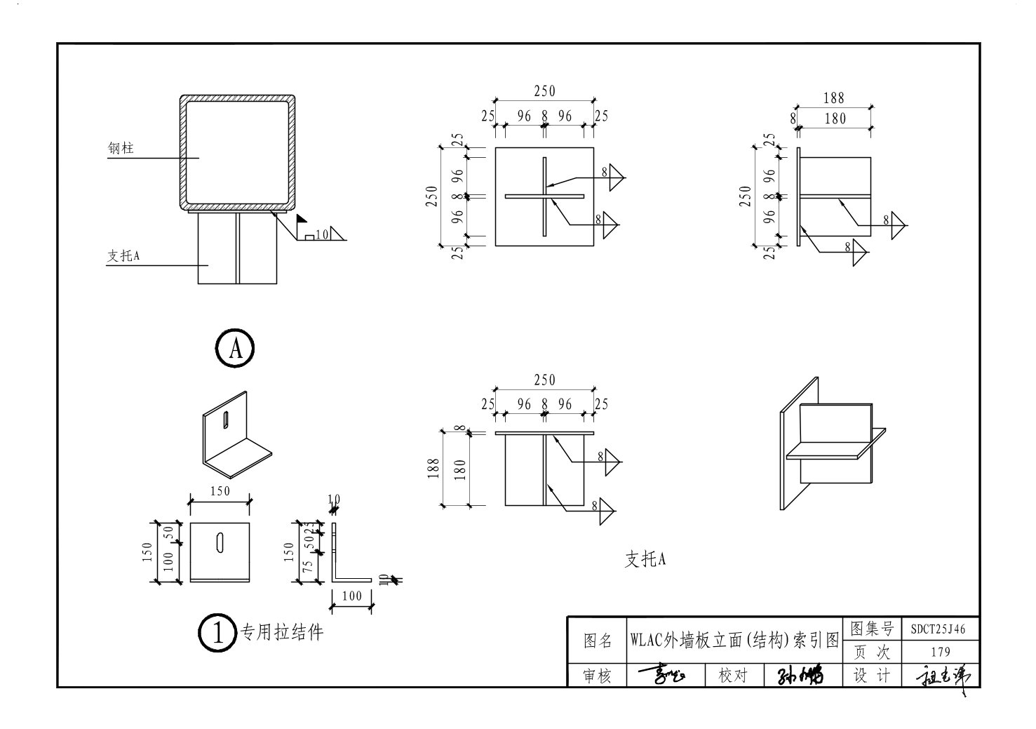
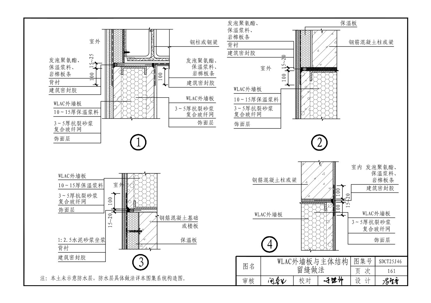
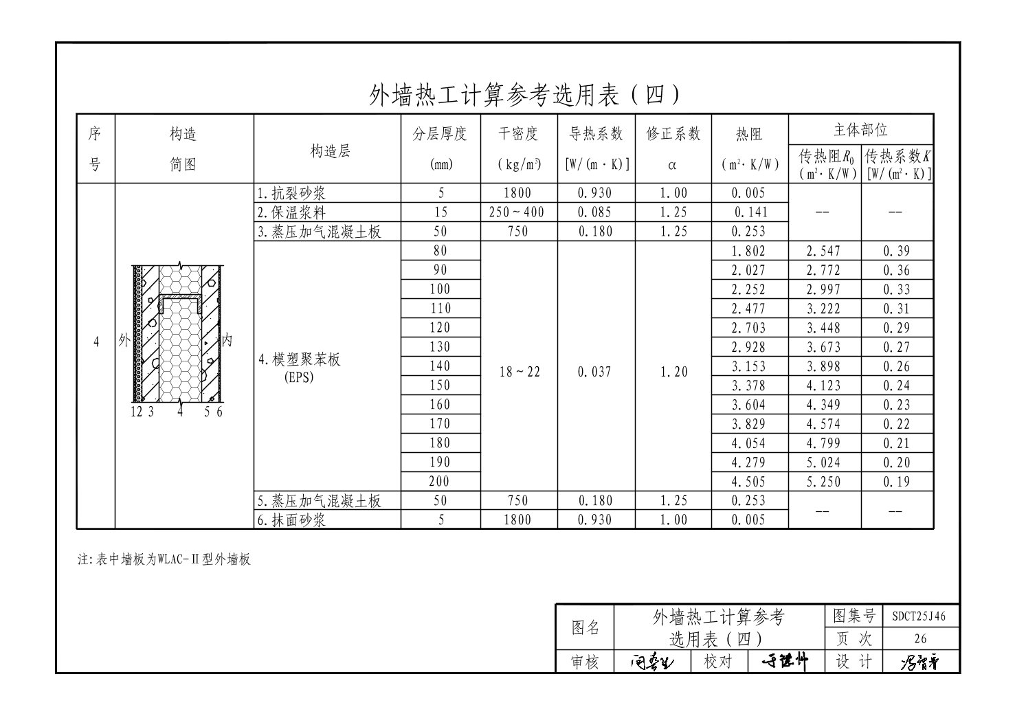
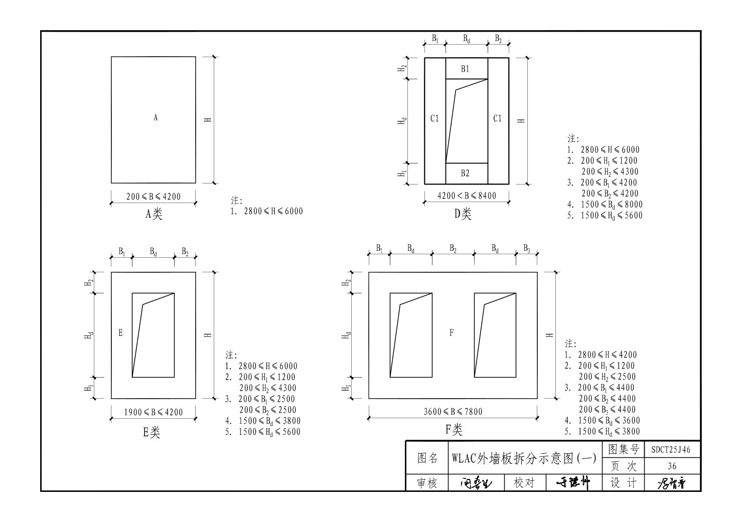
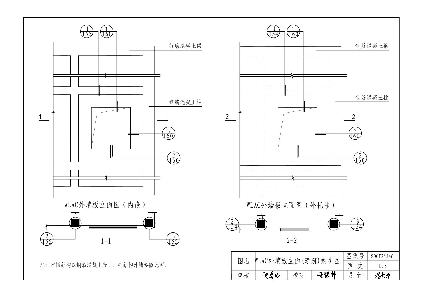
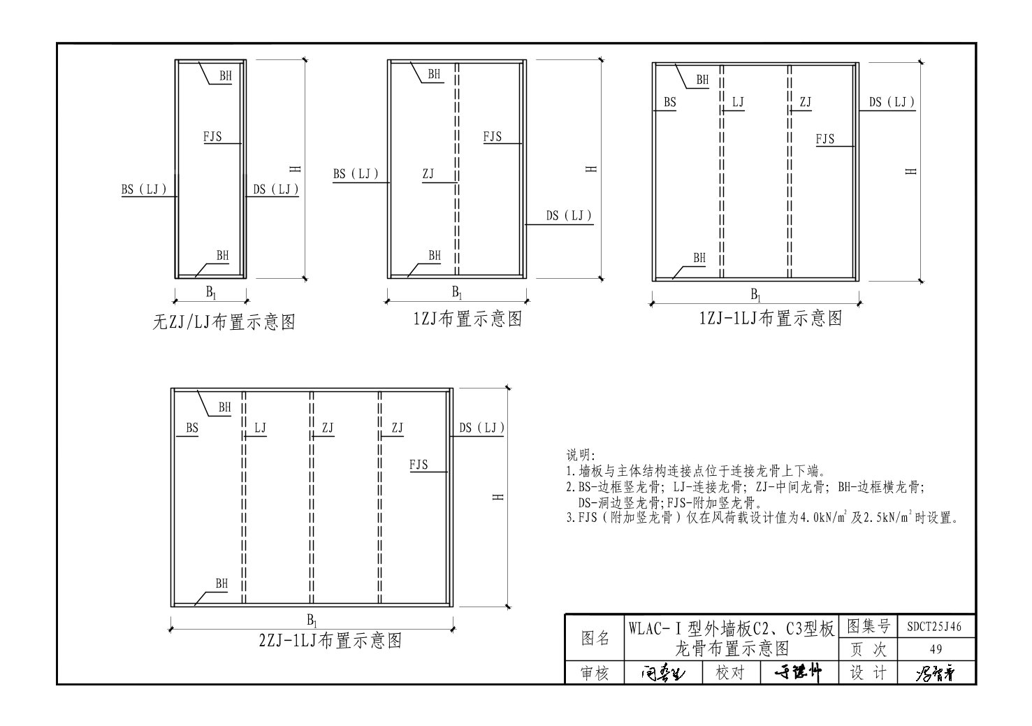
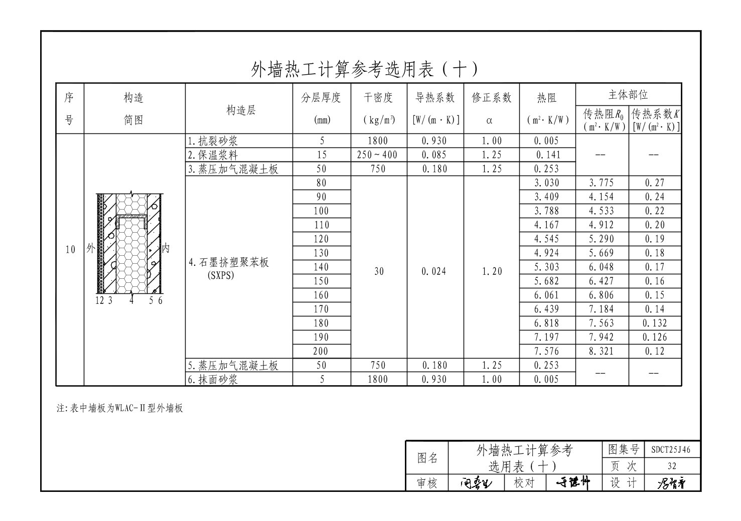
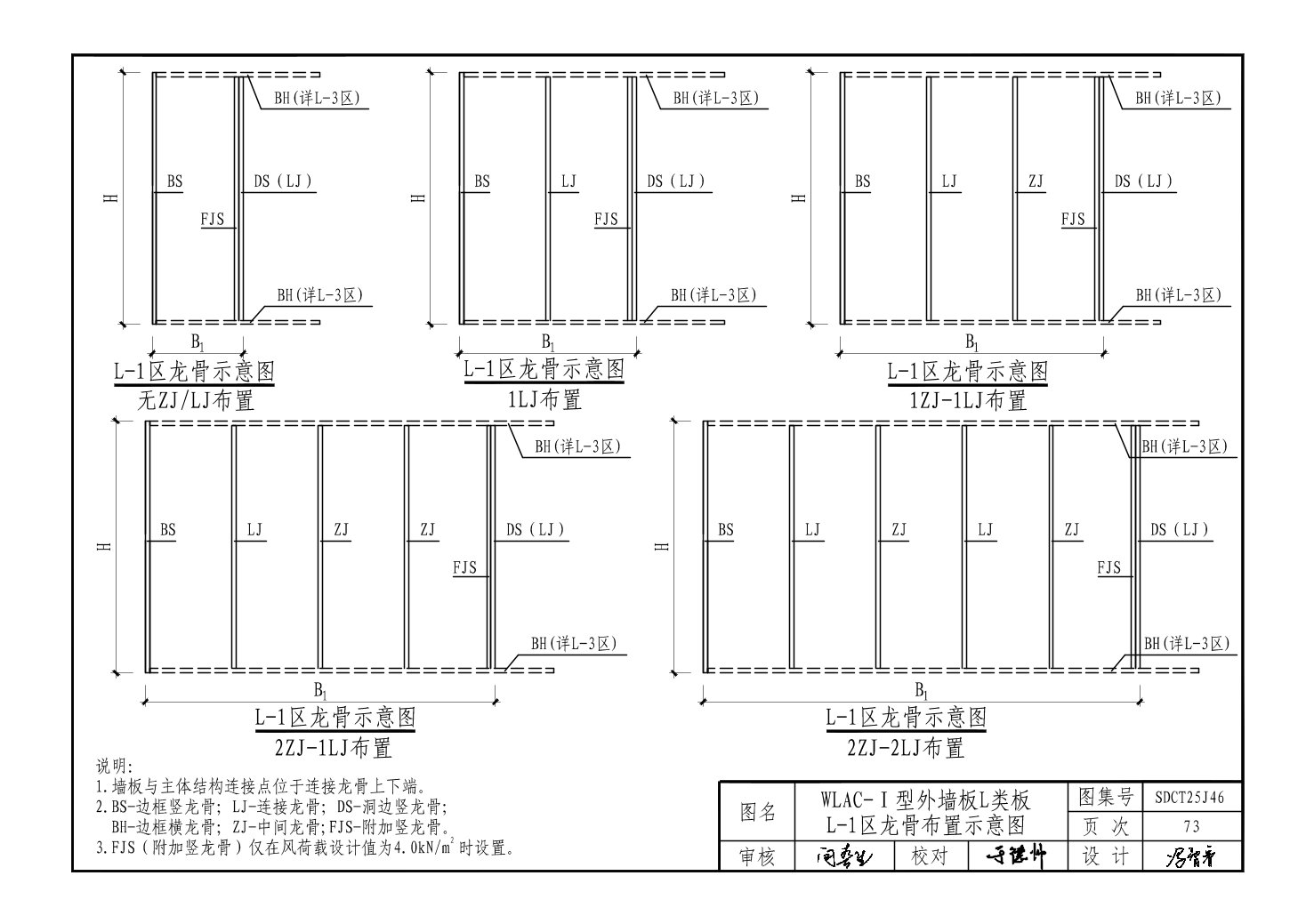
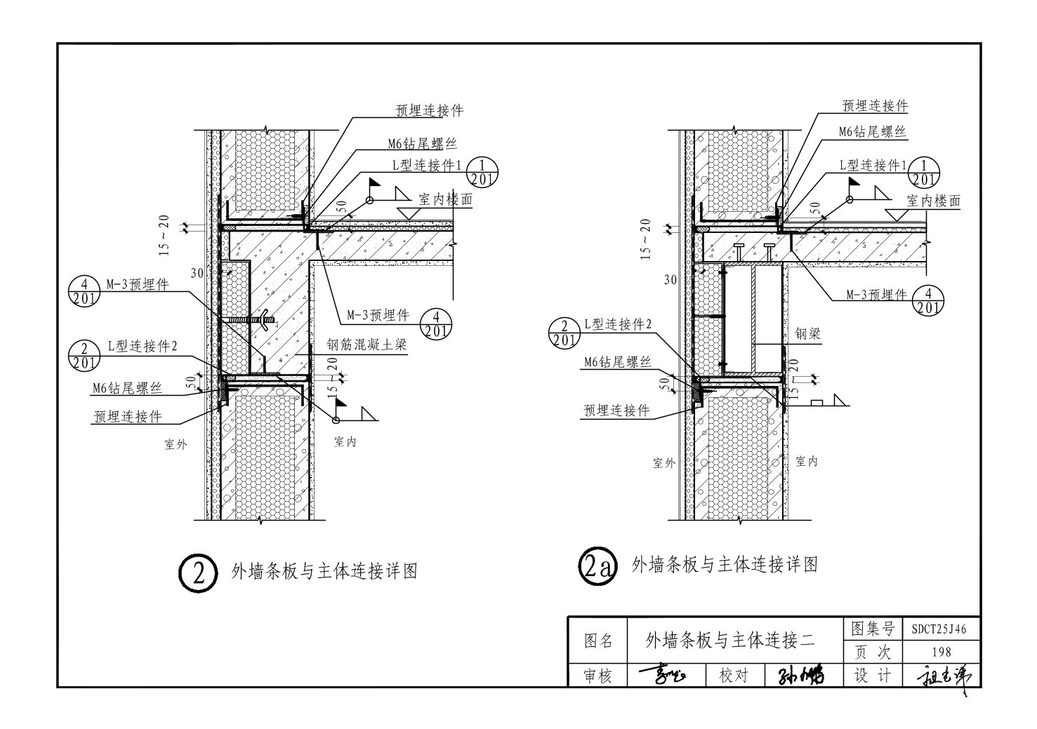
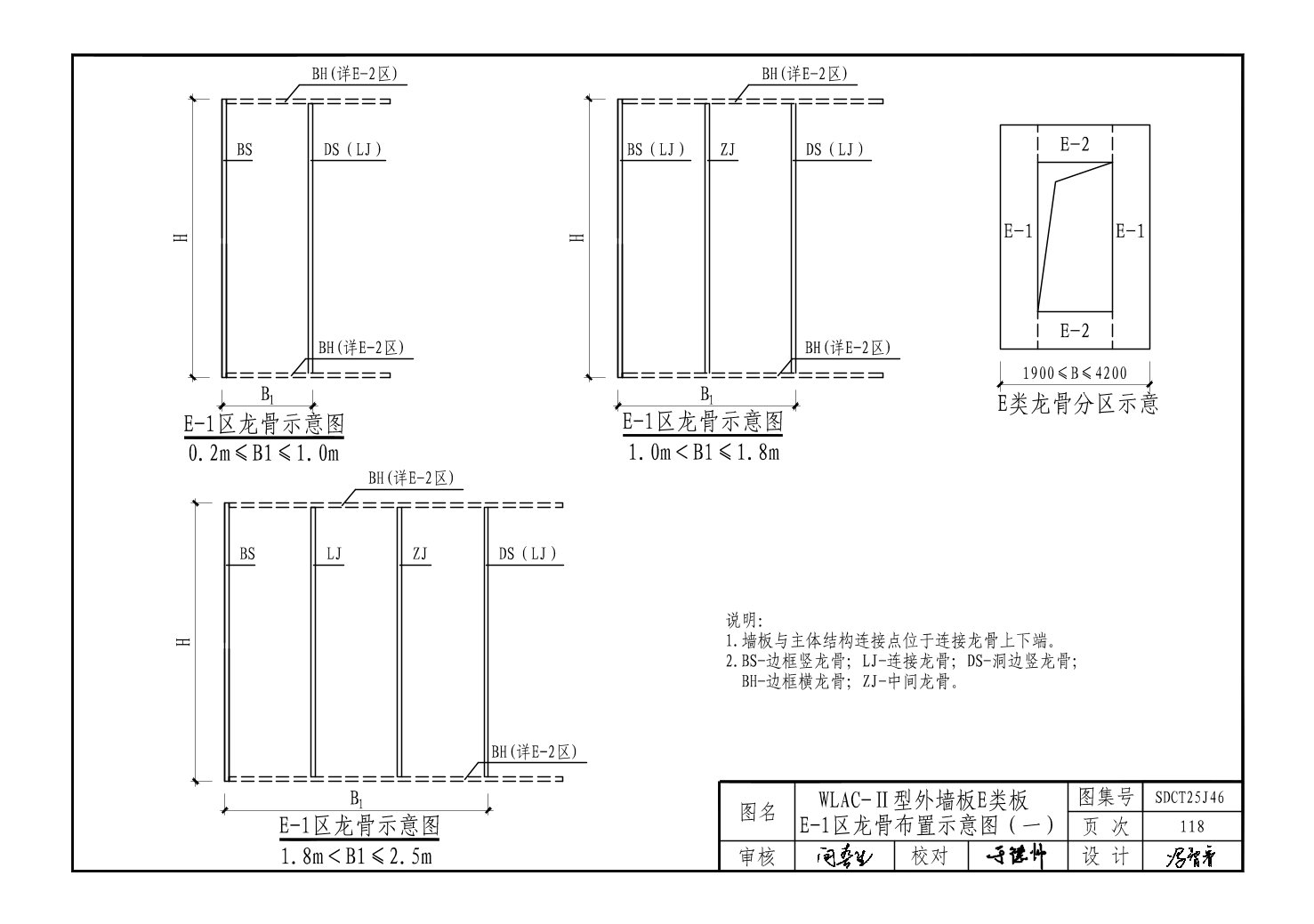
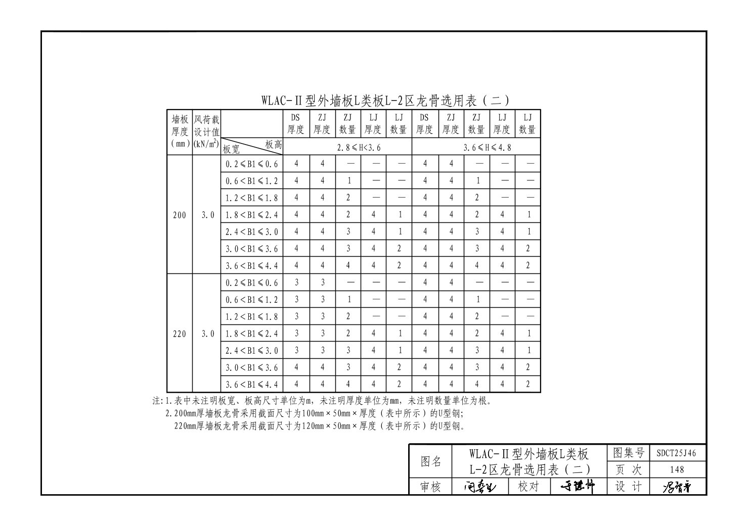
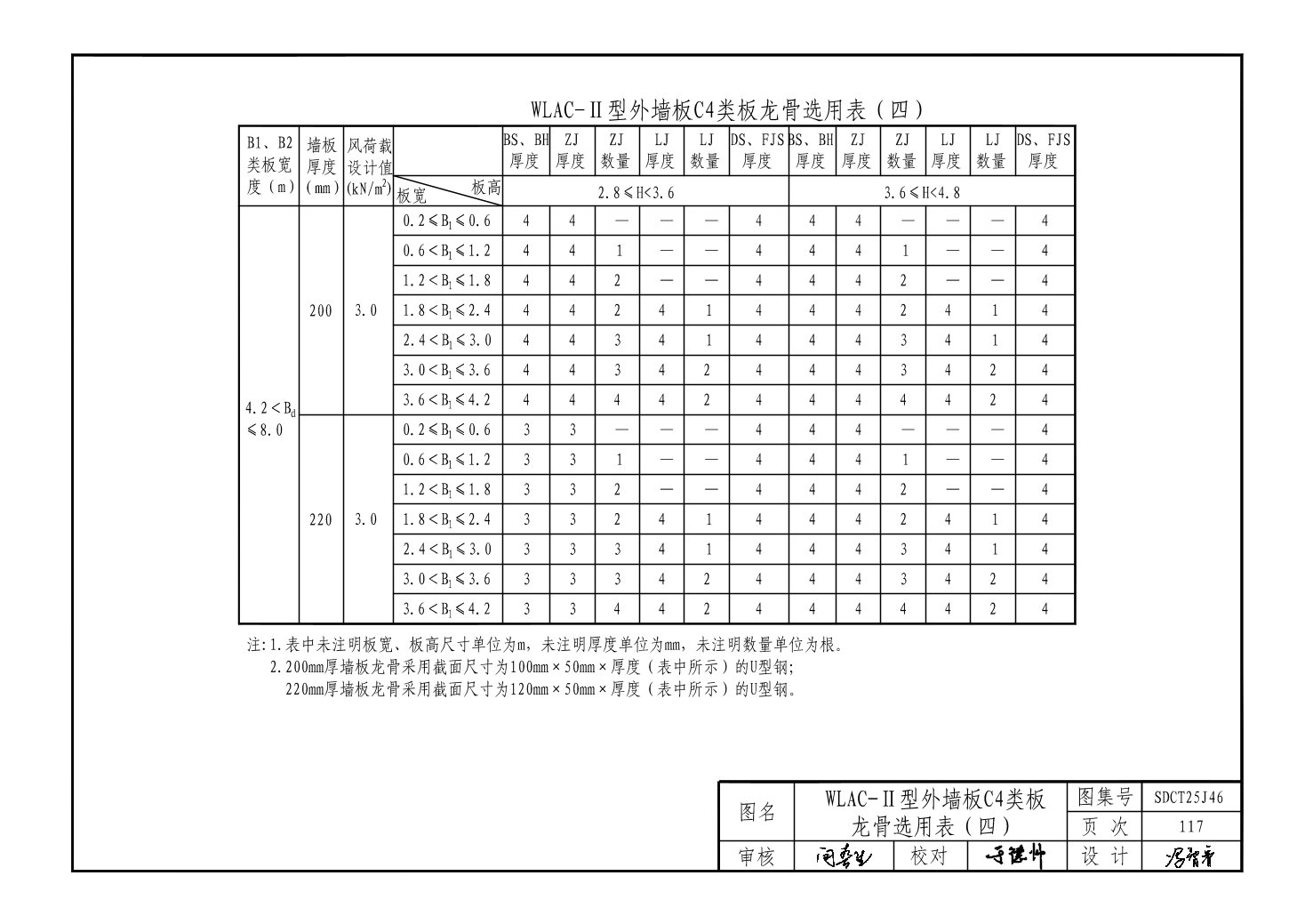
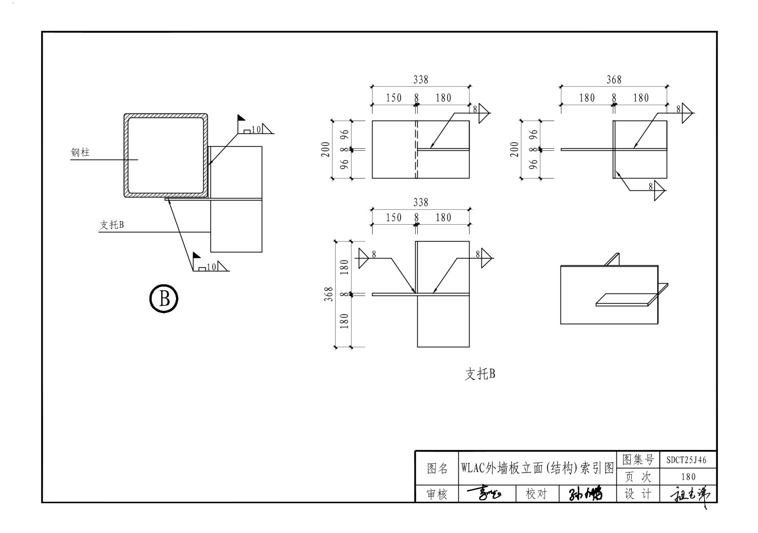
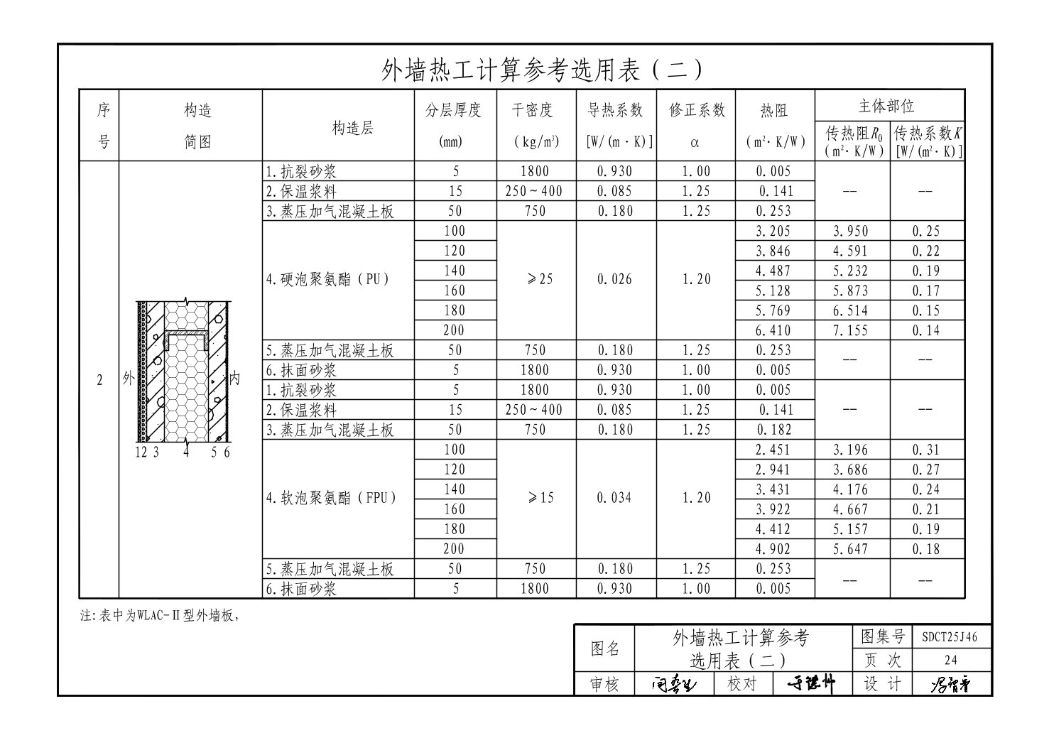
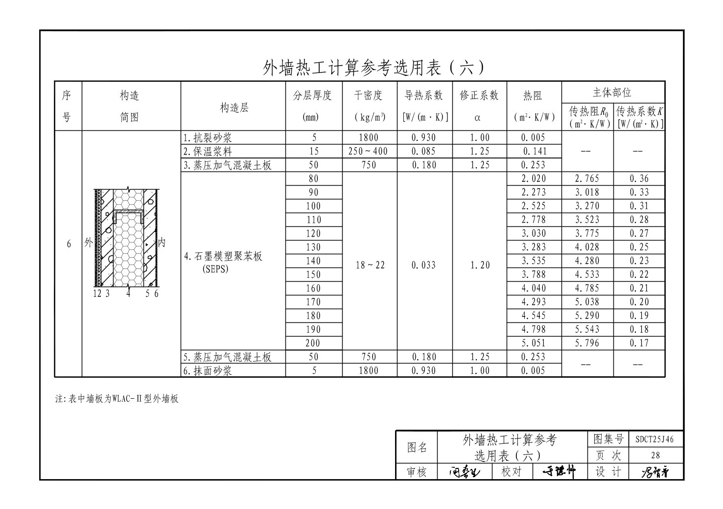
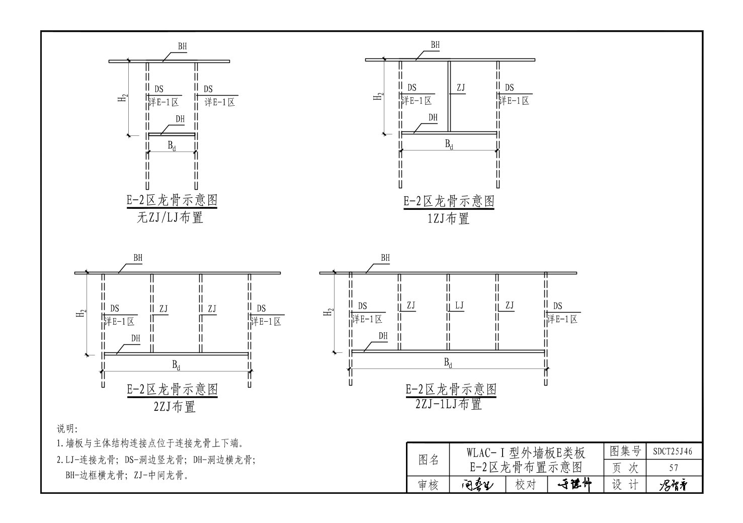
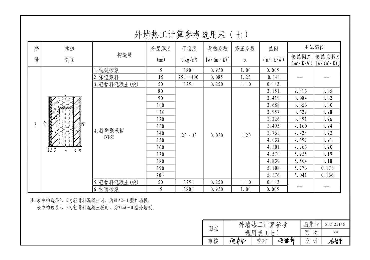
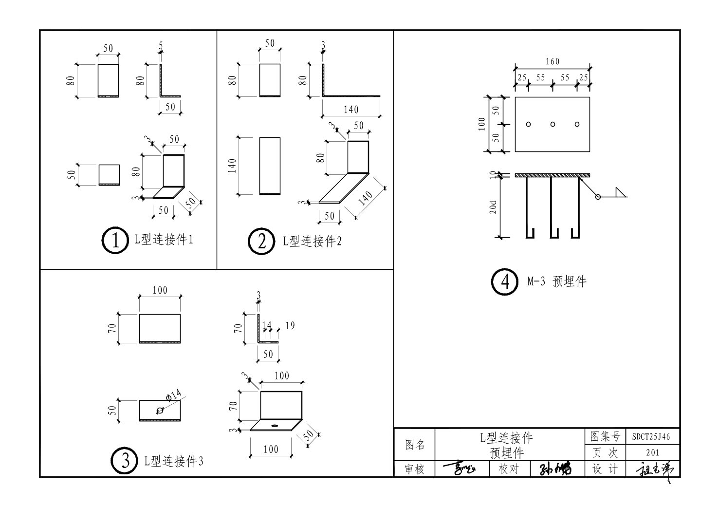
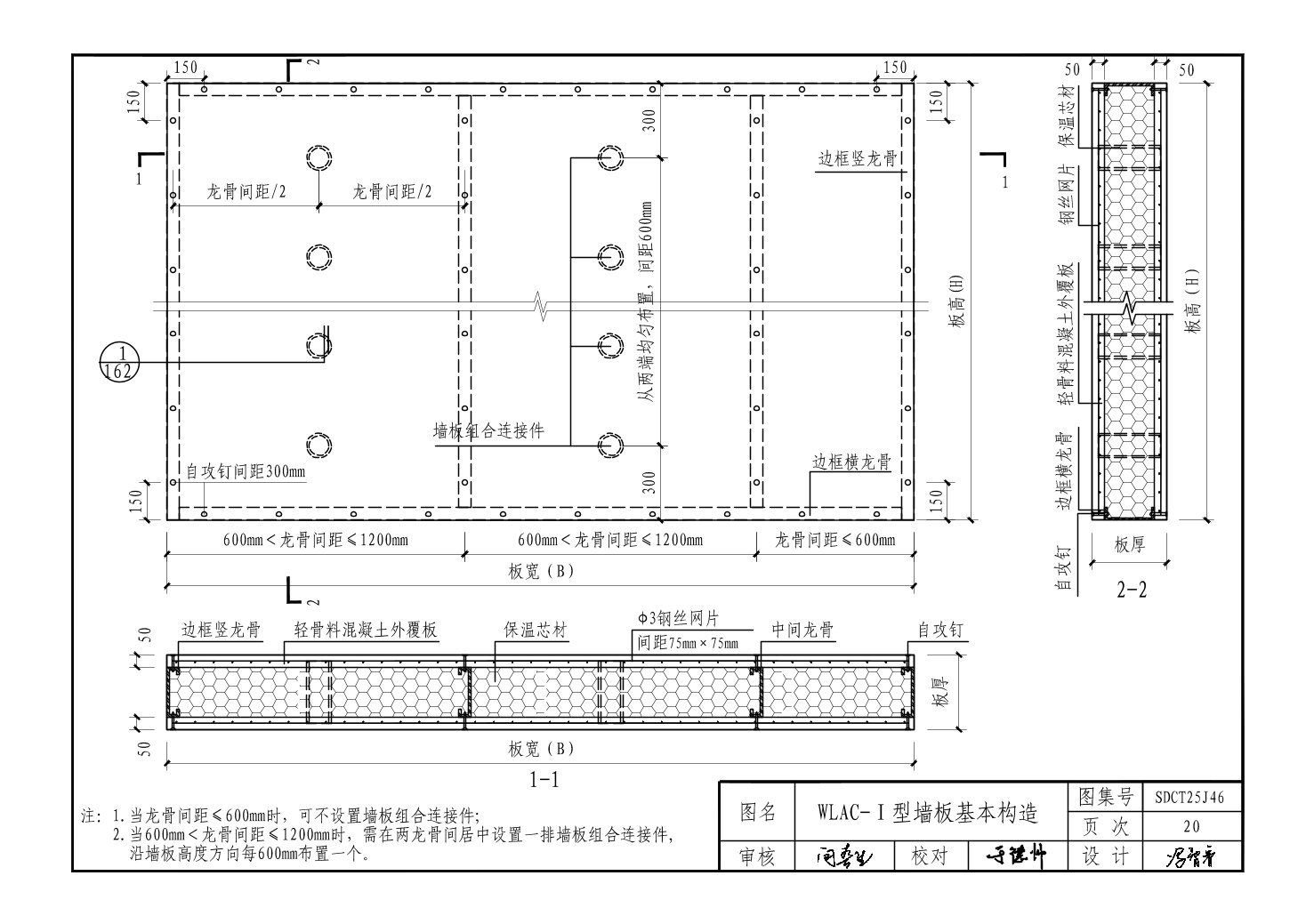
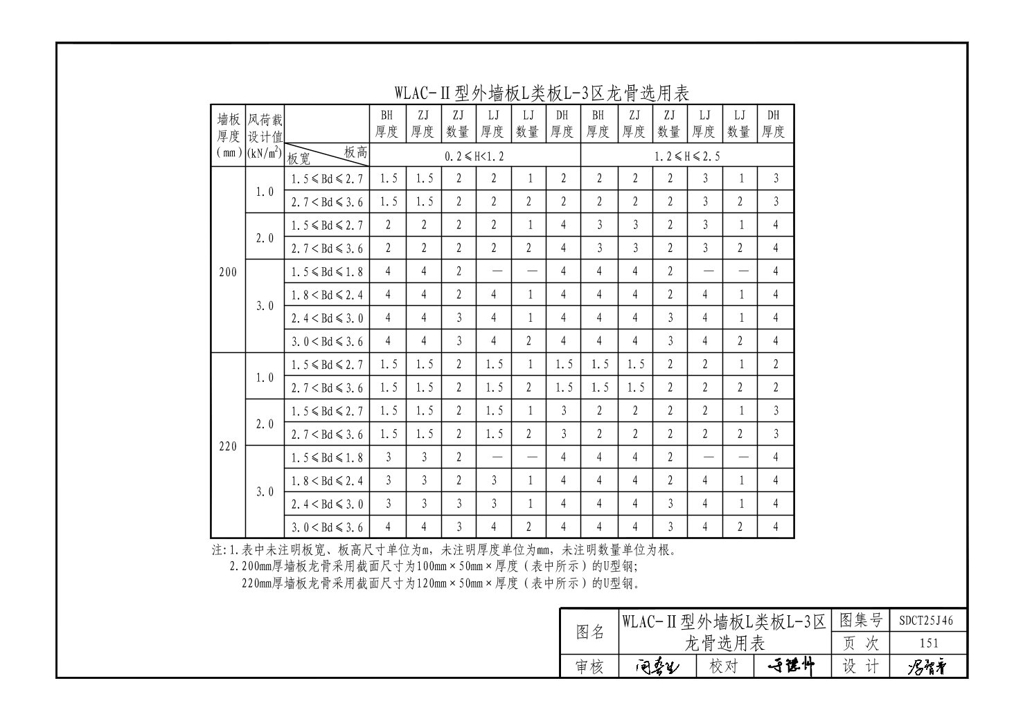
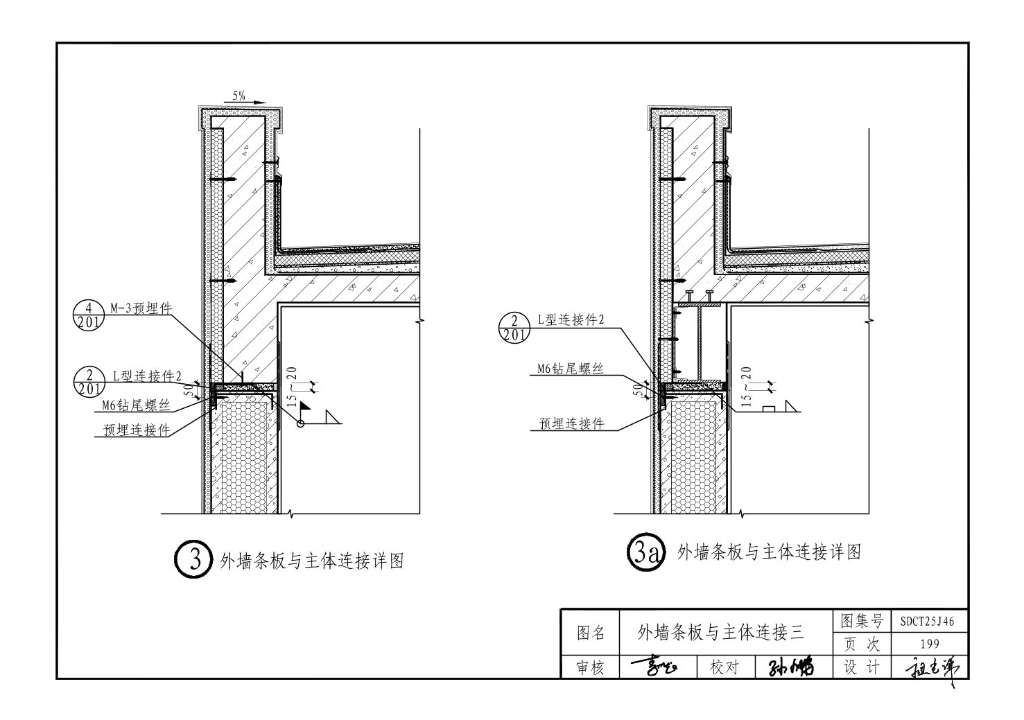
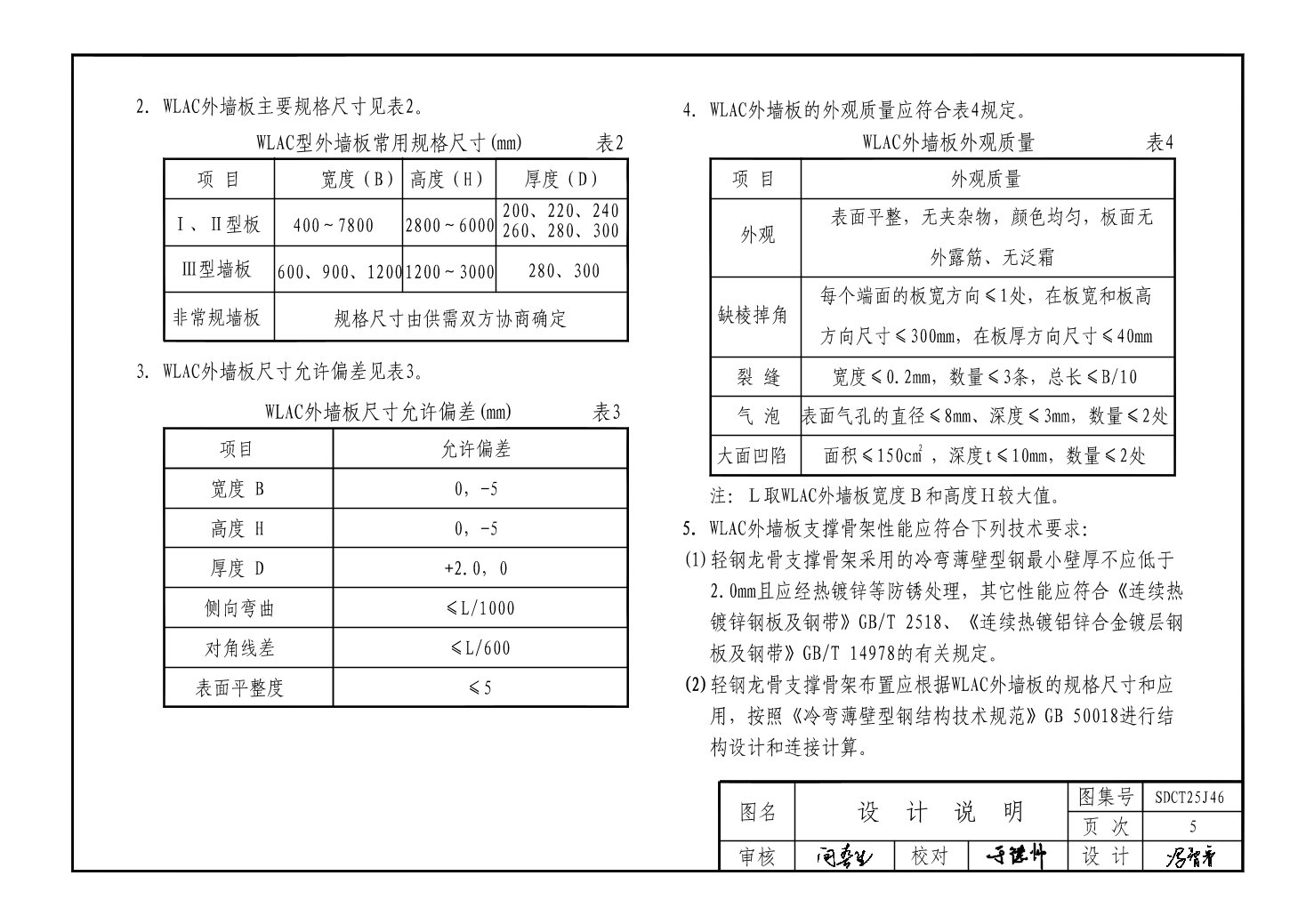
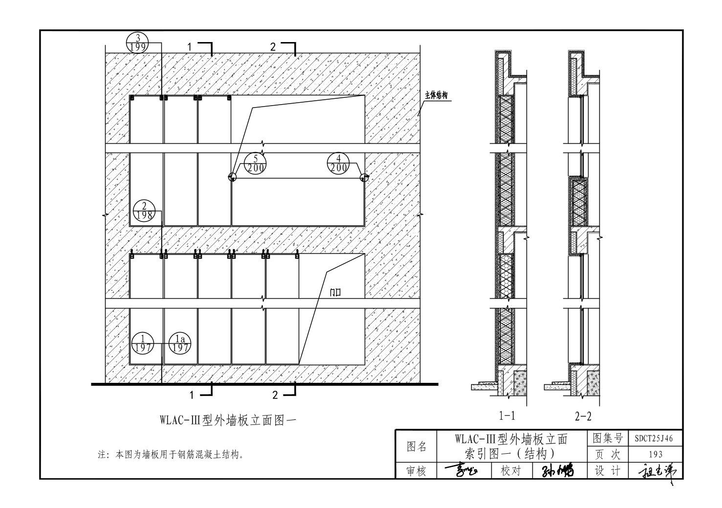
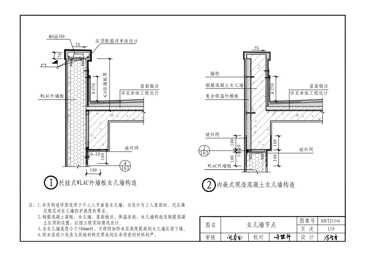
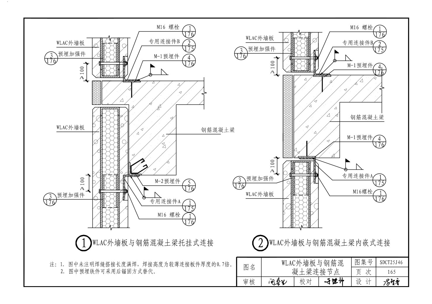
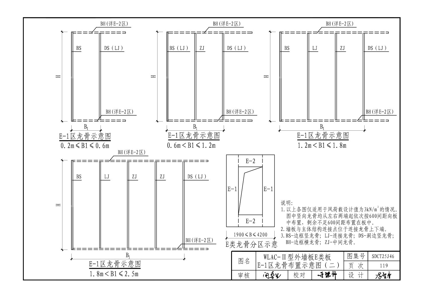
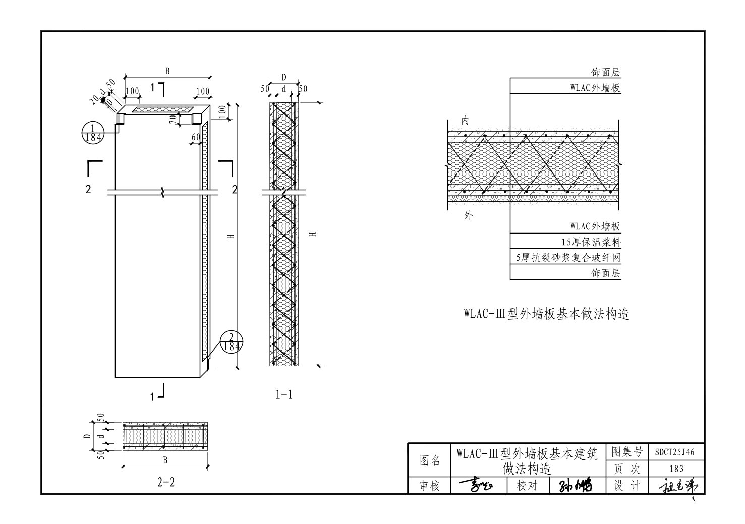
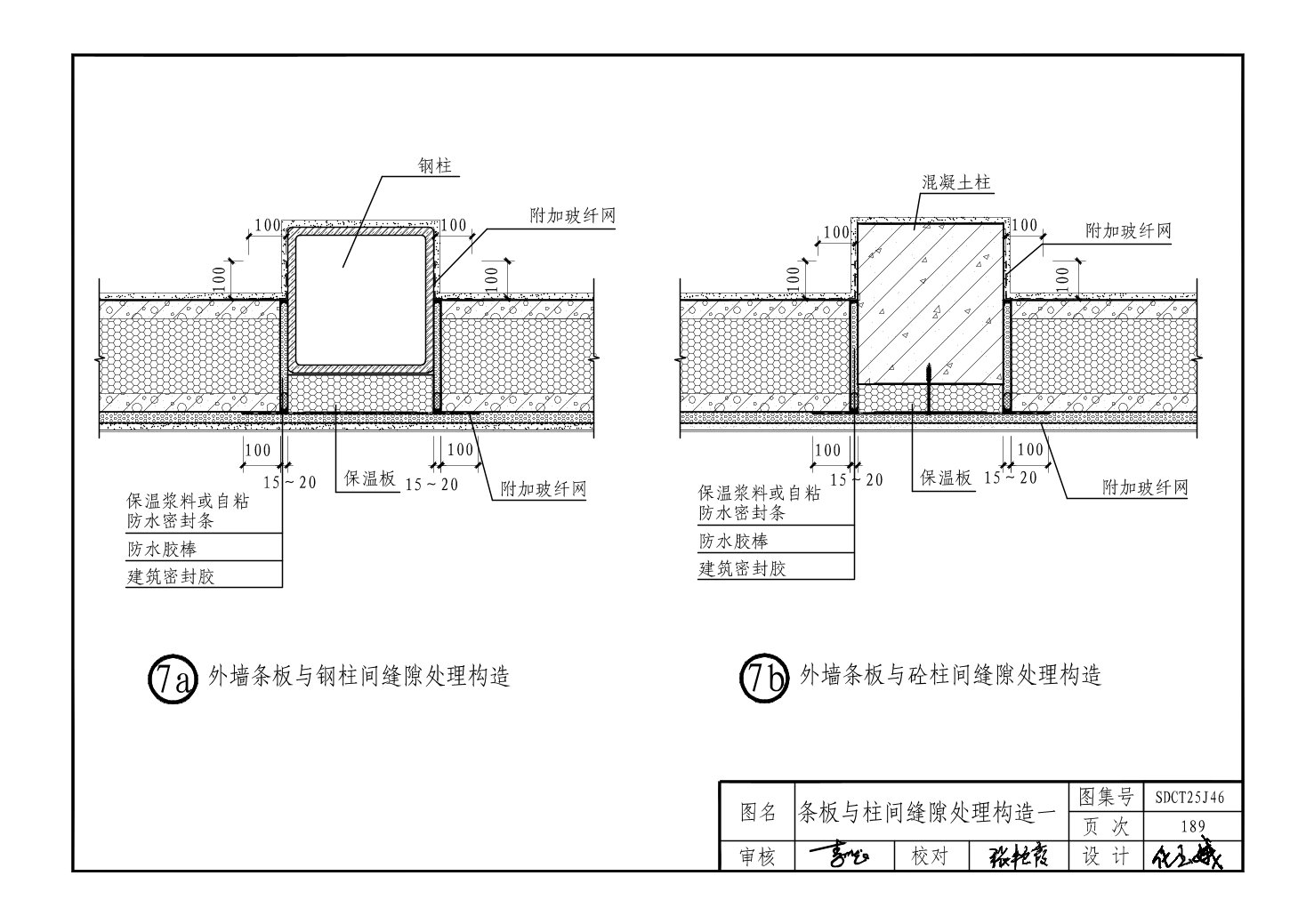
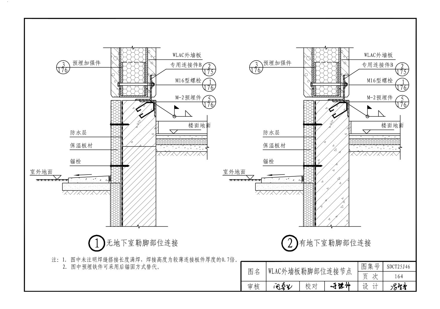
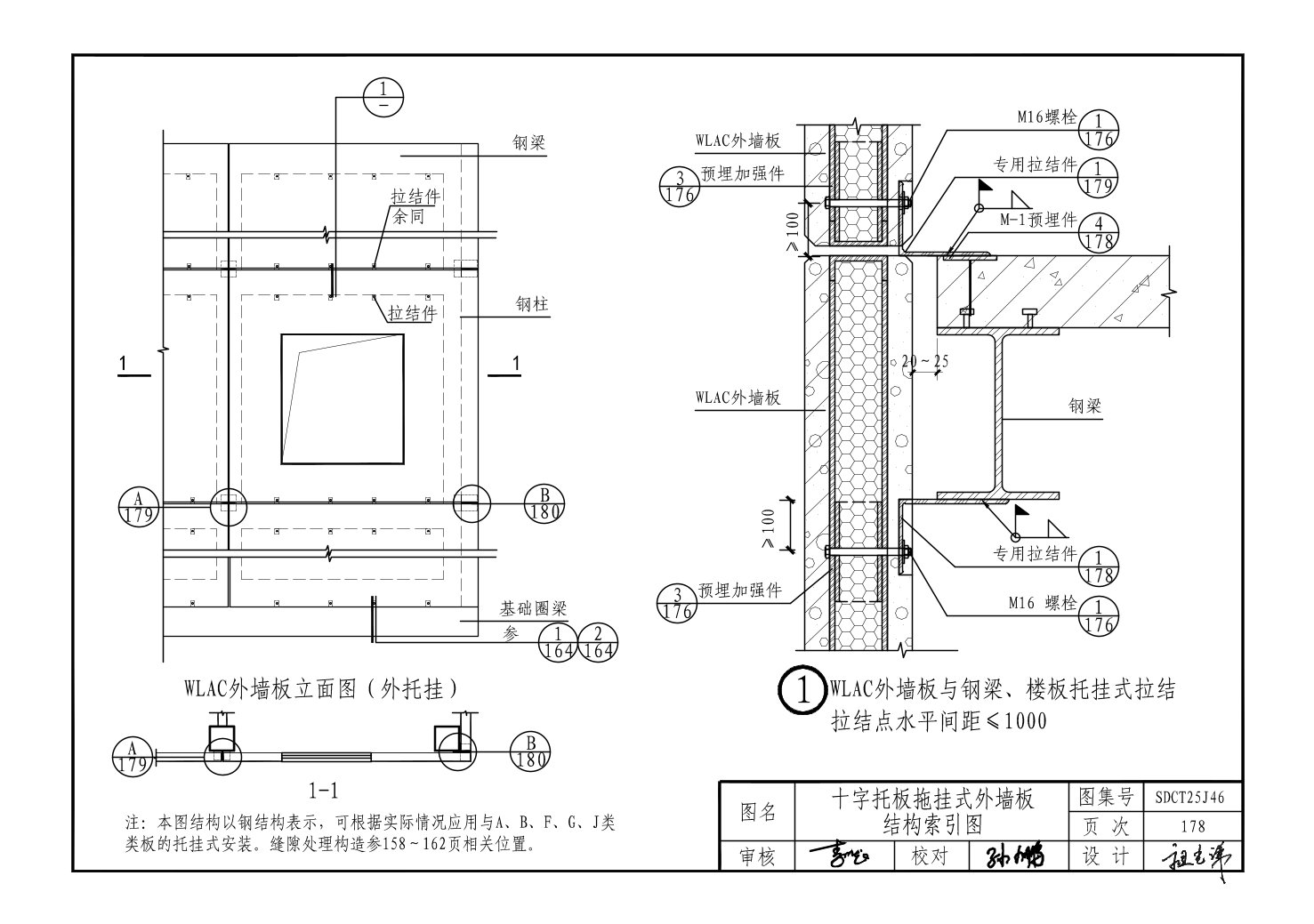
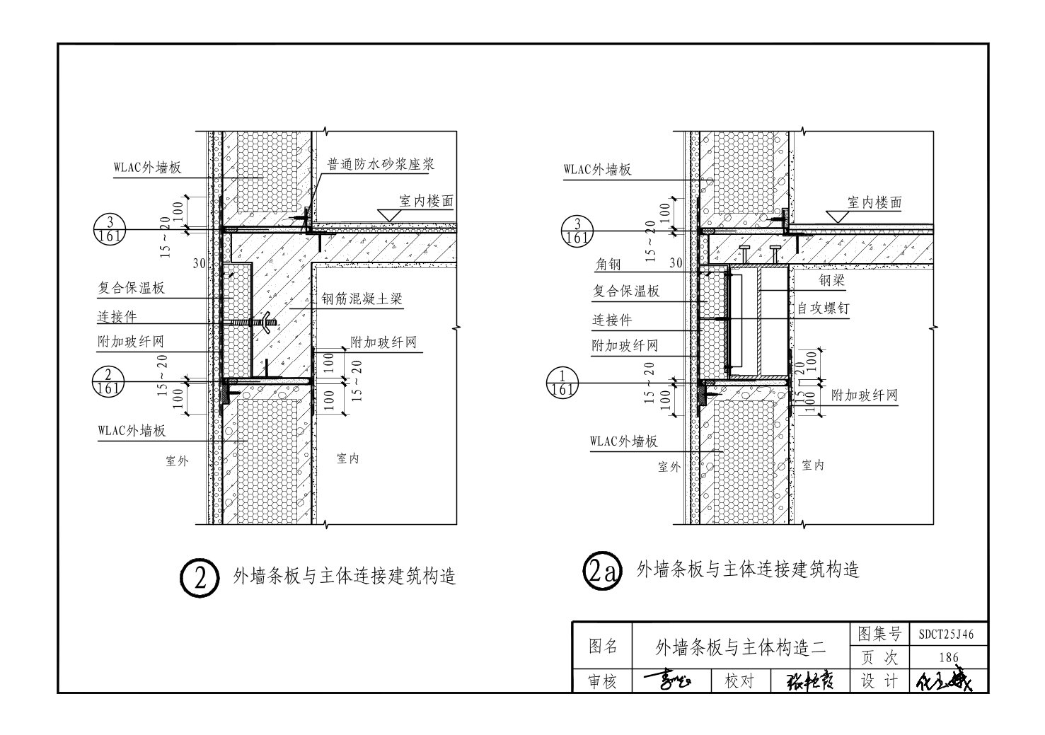
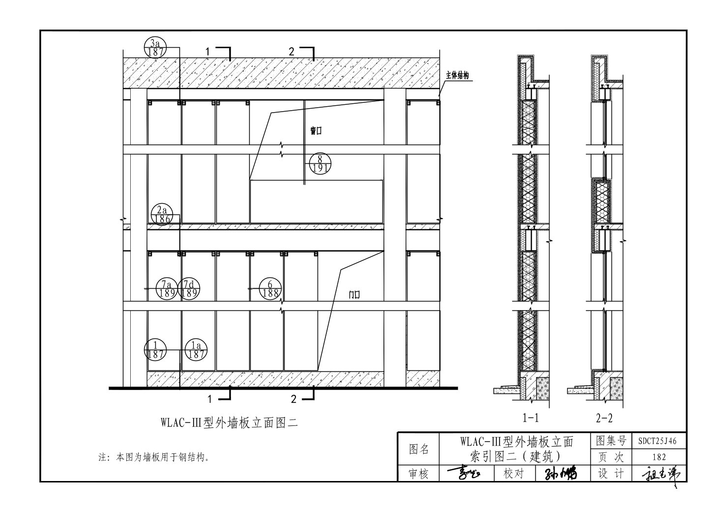
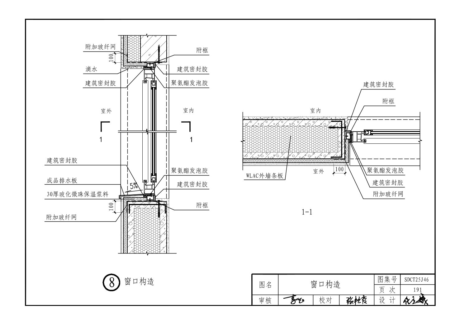
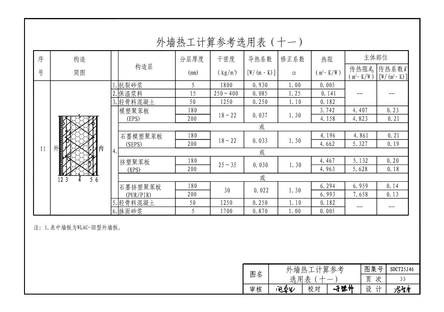
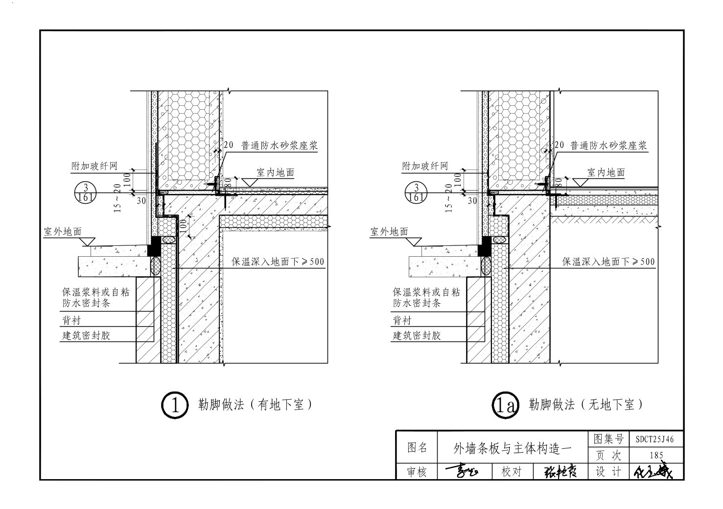
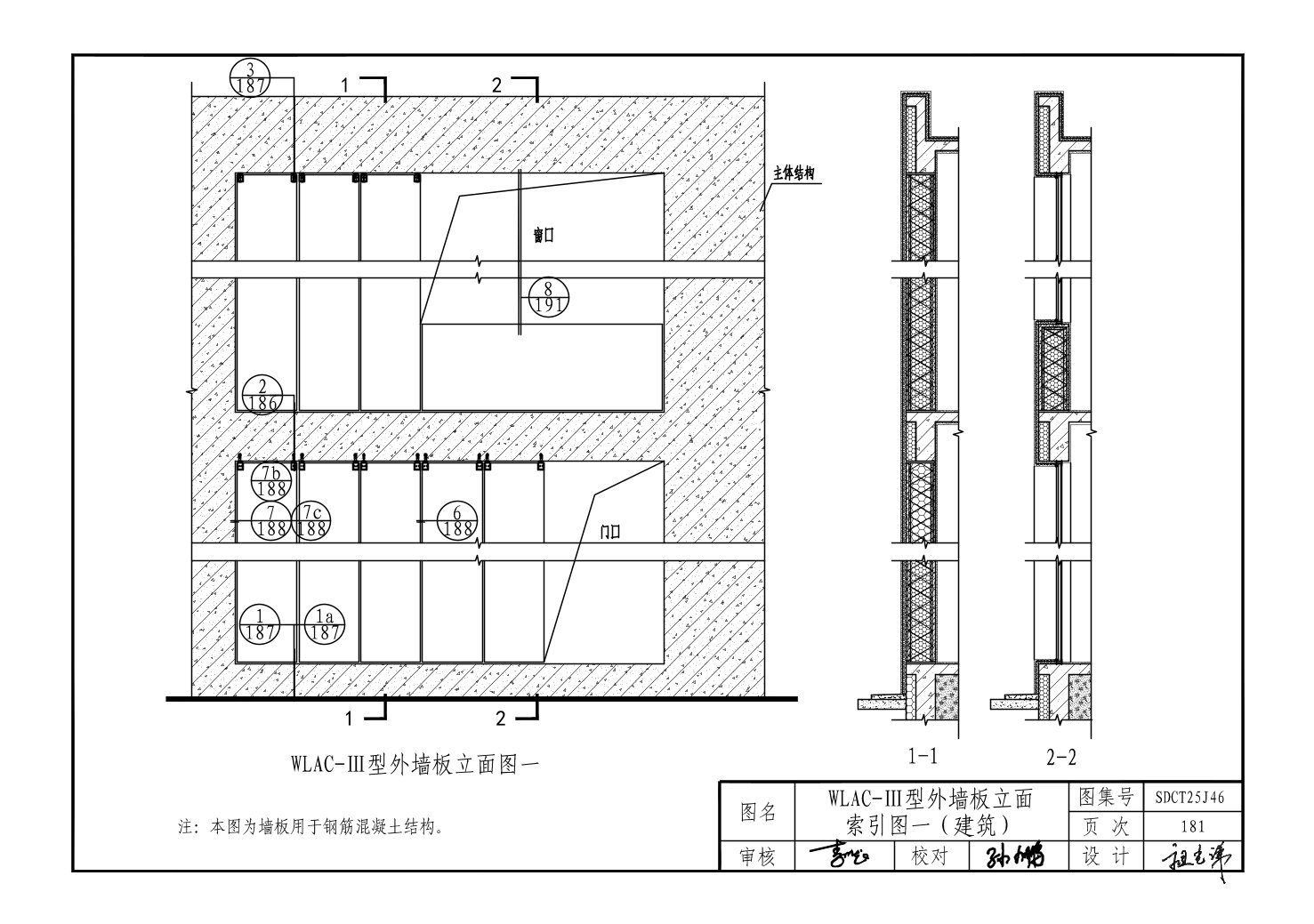
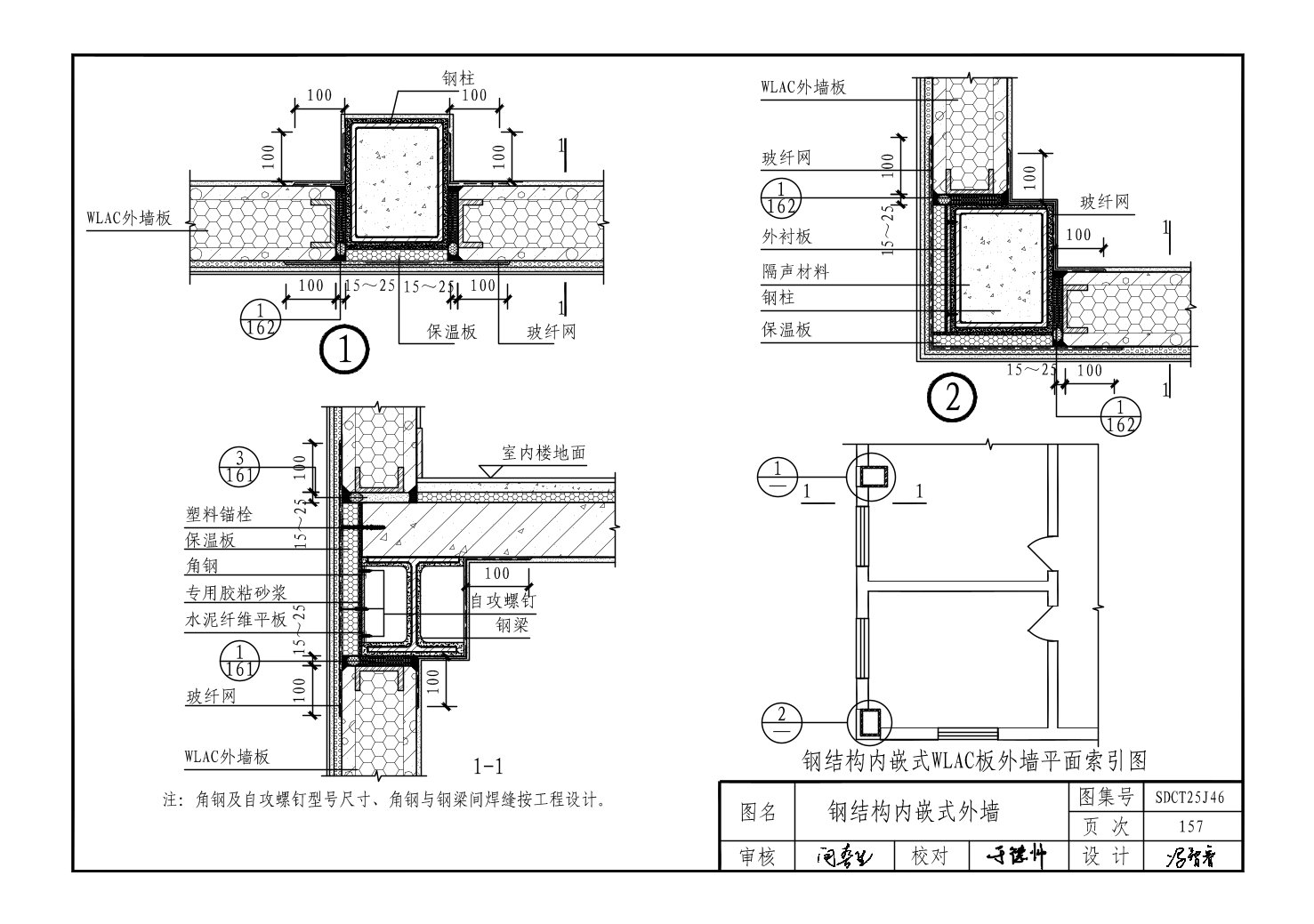
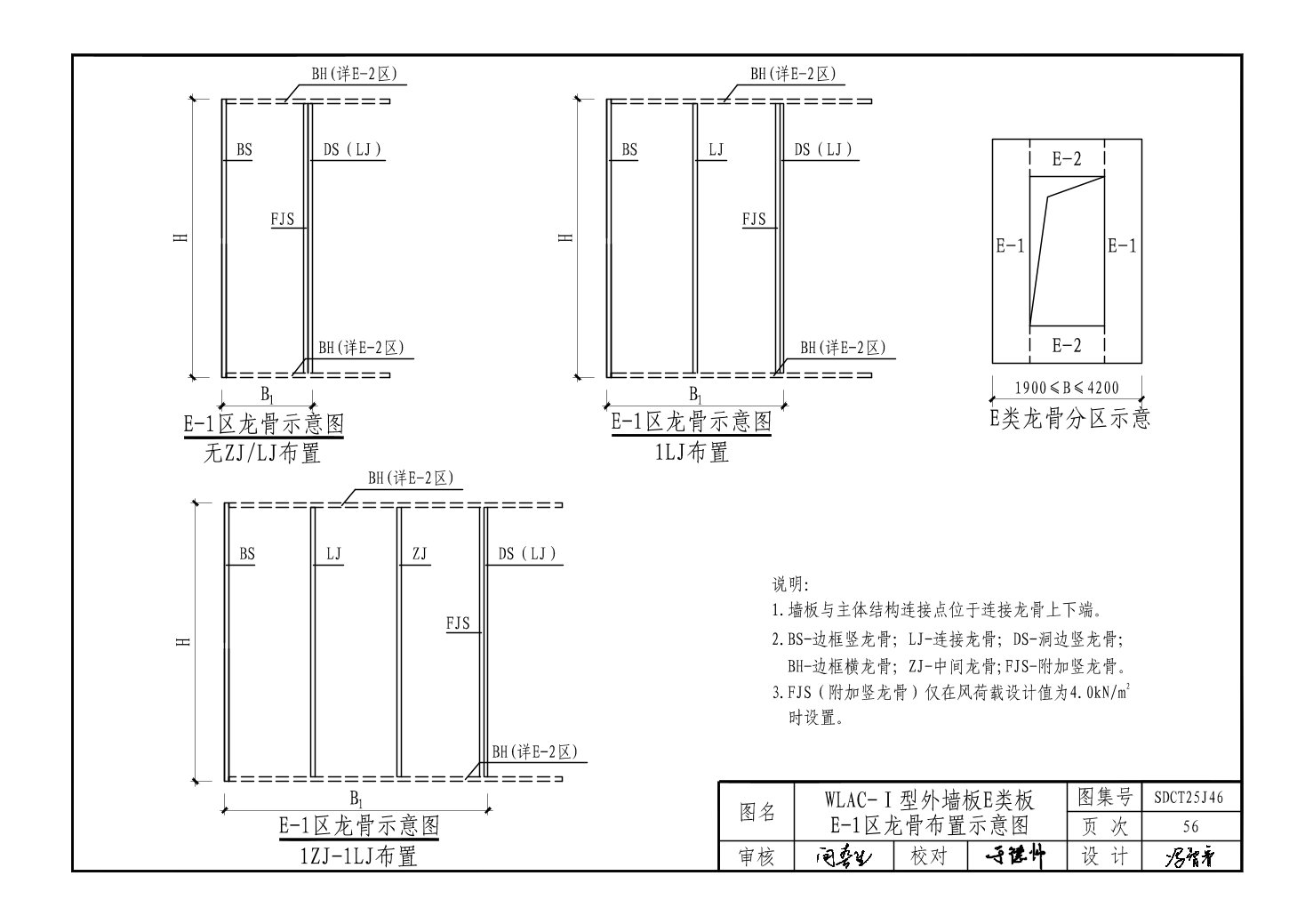
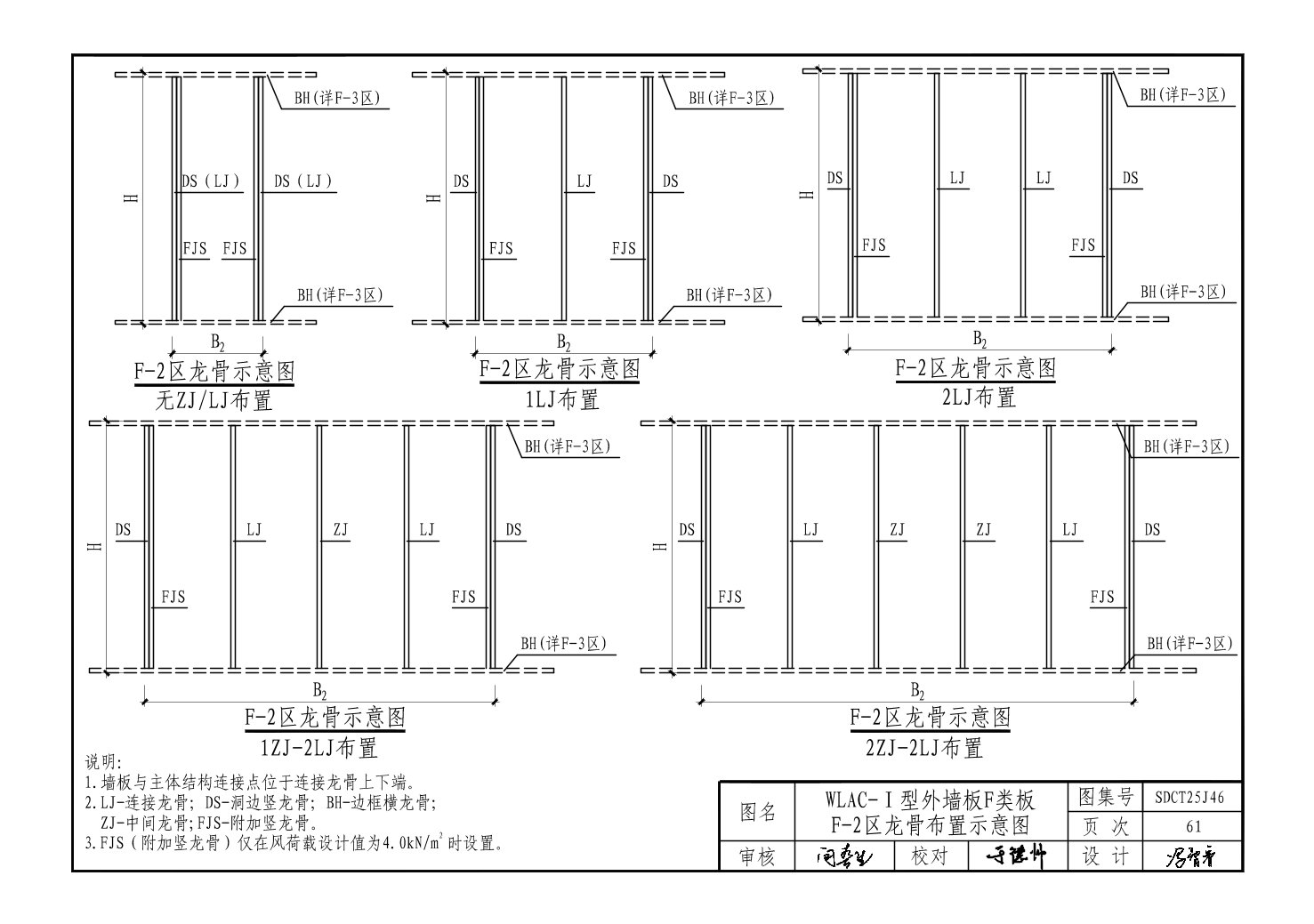
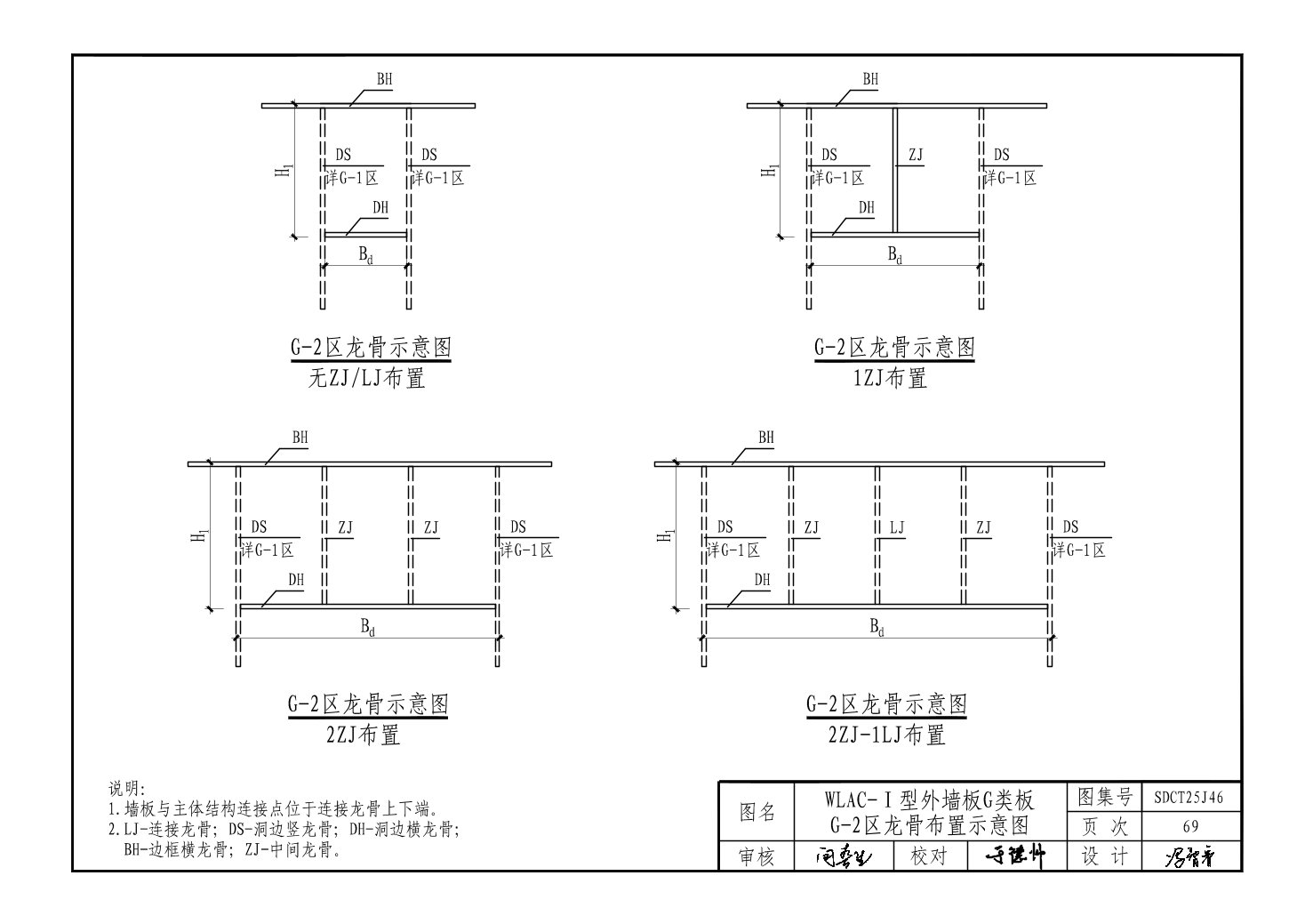
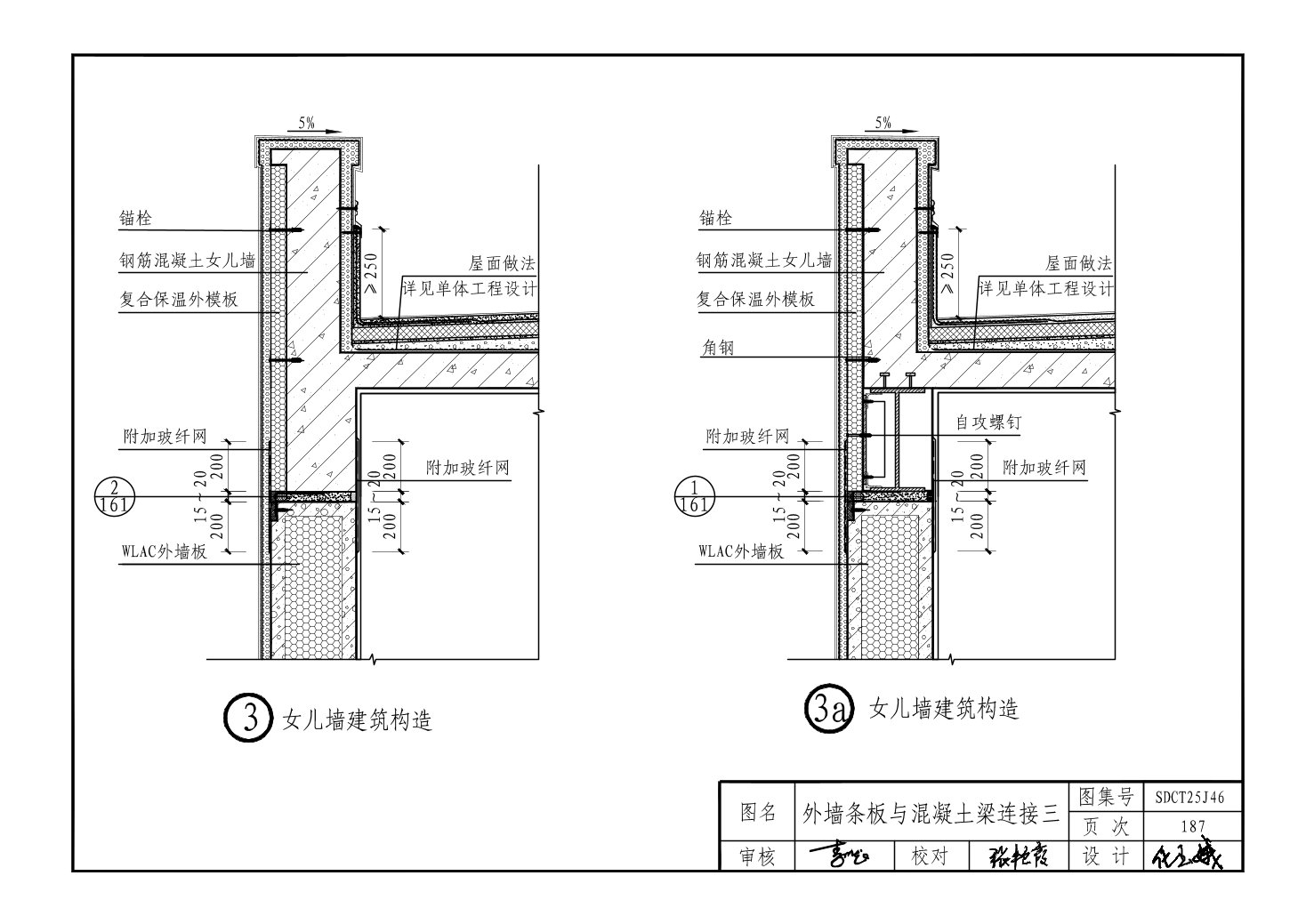
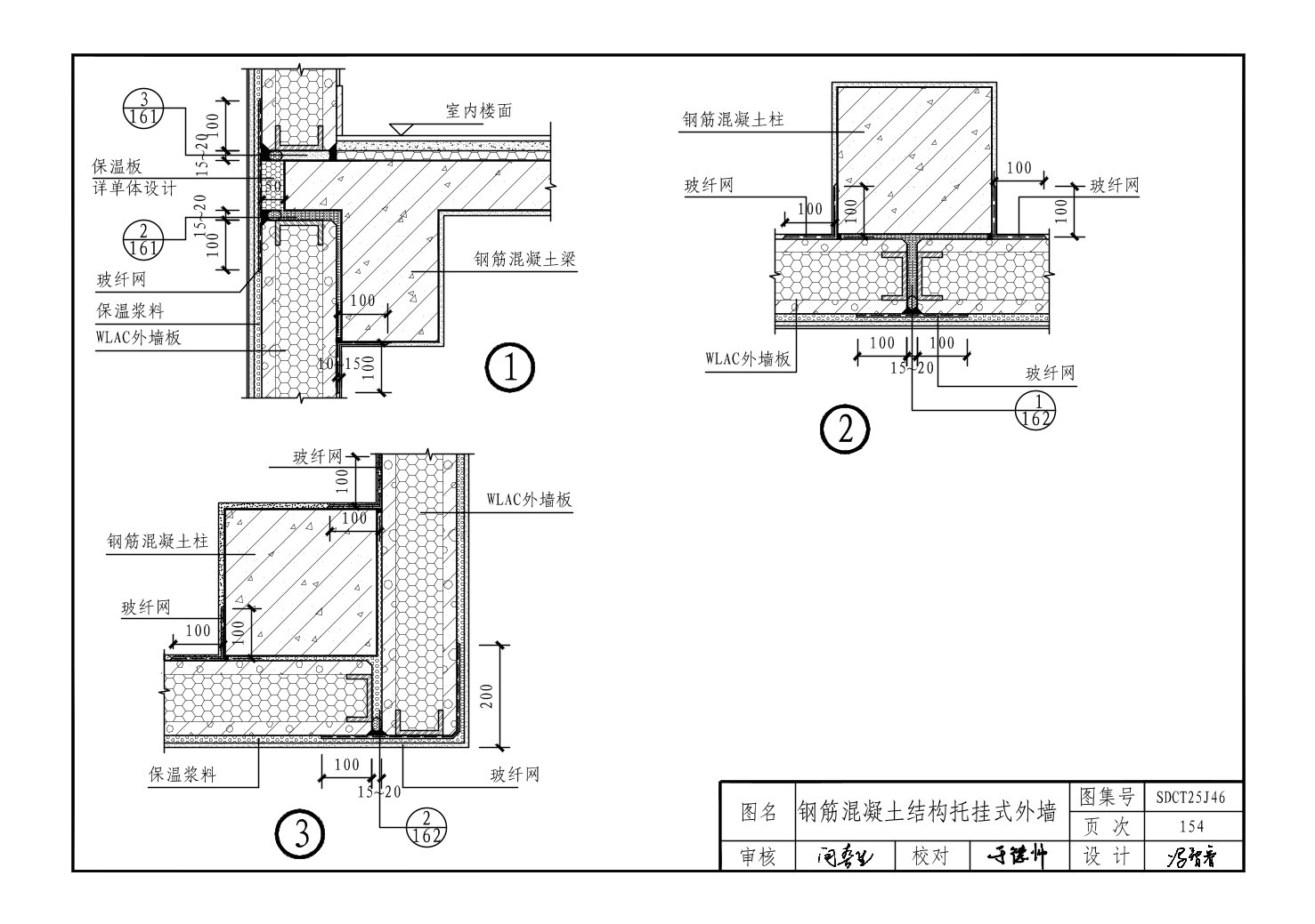
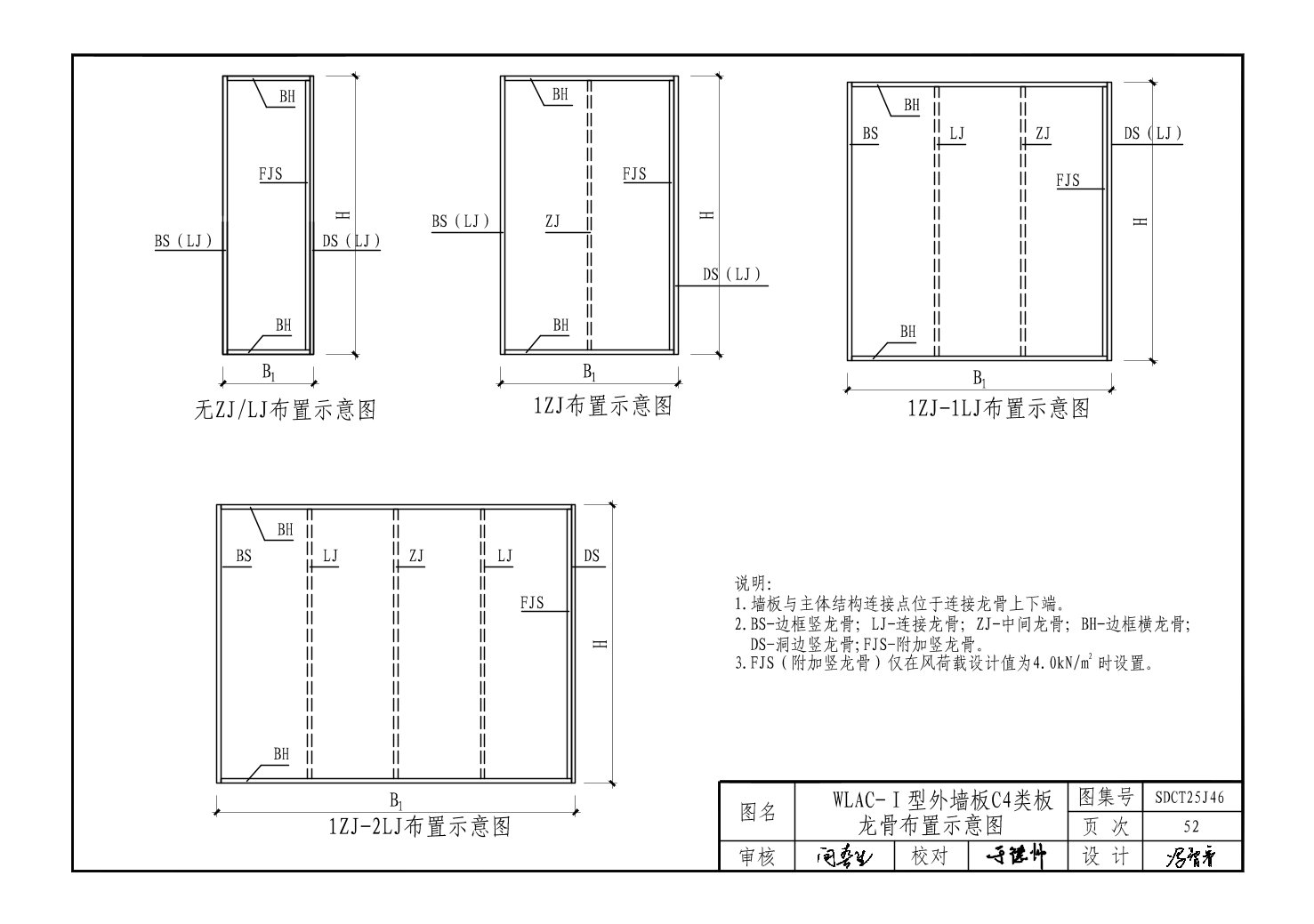
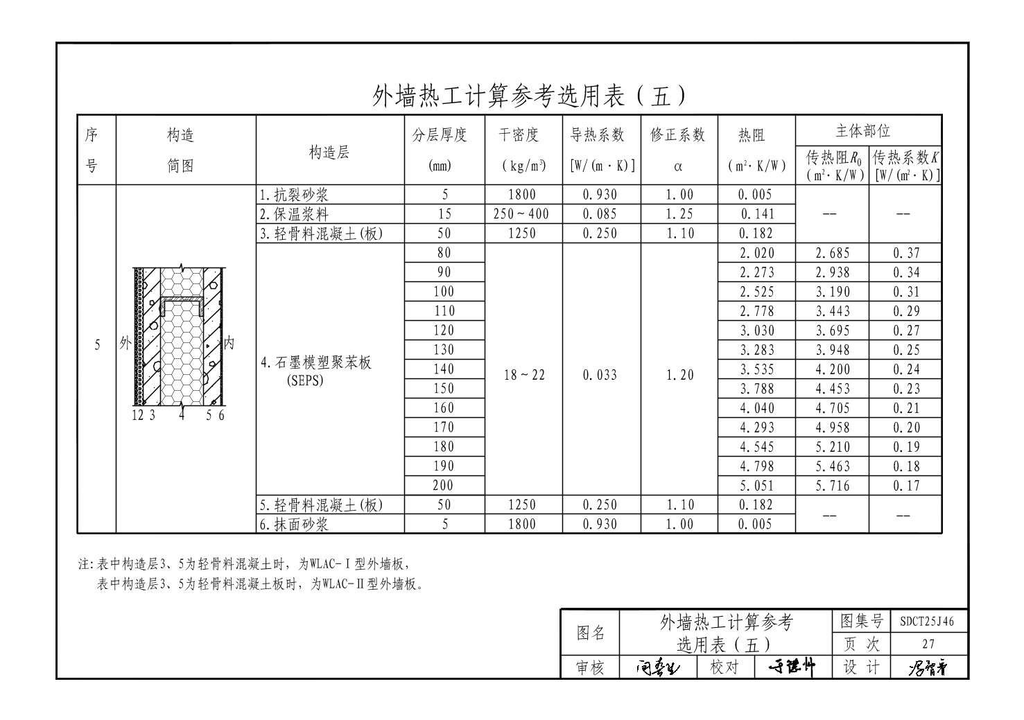
WLAC轻型装配式复合保温外墙板系统建筑构造设计图集
分享到:
WLAC轻型装配式复合保温外墙板系统建筑构造设计图集
上一条:
WLAC轻型装配式复合保温外墙板系统应用技术标准
下一条:没有了!